POWIERZCHNIA (M²)

CENA ZA M²

PIĘTRO

LICZBA POKOI

ROK BUDOWY

RYNEK

NUMER OFERTY

Poprzednia oferta
Powrót
Następna oferta

Przestronne mieszkanie dla rodziny – Pogodno

Mieszkanie na sprzedaż

Lokalizacja Szczecin Pogodno
ul. Romualda Traugutta
Numer oferty ROY04334
Rodzaj budynku Część domu
Rok budowy 1990
Materiał Cegła
Liczba pokoi 4
Powierzchnia 155 m2
Cena 1 299 000 zł

Opis

Dwupoziomowe mieszkanie z potencjałem – idealne dla rodziny

Mieszkanie położone jest w spokojnej części Pogodna, przy ul. Romualda Traugutta w Szczecinie.
To przestronny, dwupoziomowy lokal w zabudowie szeregowej, oferujący łącznie 155,30 m² powierzchni użytkowej.
Układ oraz charakter nieruchomości sprawiają, że to doskonała propozycja dla rodzin poszukujących dużego, funkcjonalnego mieszkania w kameralnym otoczeniu.

Układ i funkcjonalność

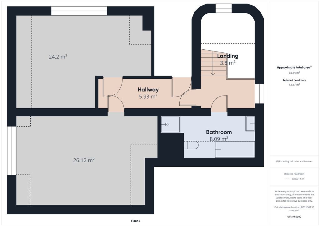
Mieszkanie zajmuje pierwsze piętro oraz poddasze budynku. Pomieszczenia są jasne, a układ pozwala na wyraźny podział na część dzienną i prywatną.
Wnętrze wymaga remontu, co daje możliwość pełnej personalizacji i stworzenia aranżacji dopasowanej do własnych potrzeb.

Poziom pierwszy:

salon z aneksem kuchennym o powierzchni ok. 40 m²,

sypialnia,

toaleta,

pomieszczenie gospodarcze / pralnia,

balkon z widokiem na zieleń.

Poziom drugi:

dwa duże pokoje,

łazienka z wanną i prysznicem,

korytarz i komunikacja.

Przestrzeń jest bardzo dobrze doświetlona dzięki dużym przeszkleniom i ekspozycji na kilka stron świata.
Rozkład pomieszczeń sprzyja wygodzie codziennego życia i zapewnia każdemu domownikowi poczucie prywatności.

Lokalizacja

Ulica Romualda Traugutta to spokojna, zielona część Pogodna – jednej z najbardziej cenionych dzielnic Szczecina.
Okolica jest kameralna, a jednocześnie dobrze skomunikowana z centrum miasta.

W zasięgu spaceru znajdują się:

sklepy i punkty usługowe (Żabka, paczkomat),

szkoły i przedszkola,

przystanki komunikacji miejskiej,

tereny spacerowe i place zabaw.

Połączenie spokoju i pełnej infrastruktury sprawia, że lokalizacja ta doskonale odpowiada potrzebom rodzin.

Dodatkowe informacje

Powierzchnia całkowita: 155,30 m² (zgodnie z księgą wieczystą),

Ogrzewanie: gazowe (piec dwufunkcyjny),

Forma własności: pełna własność,

Budynek: zabudowa szeregowa,

Otoczenie: spokojne i zadbane.

Podsumowanie

To mieszkanie stanowi doskonałą propozycję dla rodziny, która szuka przestrzeni i funkcjonalnego układu w dobrej lokalizacji.
Dwupoziomowy charakter, możliwość własnej aranżacji oraz położenie w sercu Pogodna to atuty, które sprawiają, że nieruchomość ma duży potencjał zarówno do zamieszkania, jak i jako inwestycja długoterminowa.


Szczegóły
Rodzaj oferty Mieszkanie na sprzedaż
Liczba pokoi 4
Liczba łazienek 1
Liczba pięter 2
Powierzchnia 155 m2
Cena 1 299 000 zł (8 364 zł/m2)
Forma prawna Własność
Rodzaj budynku Część domu
Rok budowy 1990
Droga dojazdowa Asfaltowa
Materiał Cegła
Stan budynku Bardzo dobry
Rodzaj ogrzewania gazowe
Dostępne w okolicy szkoła, przedszkole, kościół, apteka, bazarek, fitnes, bank, centrum handlowe
Dodatkowo internet    telewizja kablowa    ogród