POWIERZCHNIA (M²)

CENA ZA M²

PIĘTRO

LICZBA POKOI

ROK BUDOWY

RYNEK

NUMER OFERTY

Poprzednia oferta
Powrót
Następna oferta

Przy cudownej plaży- Idealny Apart.Międzyzdroje

Mieszkanie na sprzedaż

Lokalizacja Międzyzdroje
Numer oferty IDN33827
Rodzaj budynku Budynek apartamentowy
Rok budowy 2013
Materiał Cegła
Liczba pokoi 3
Powierzchnia 83 m2
Cena 1 490 000 zł

Opis

Codzienna kawa na dużym balkonie w otoczeniu zieleni? Schłodzony szampan wieczorową porą z bryzą nadmorską? ... to małe drobne rzeczy, które umilą każdy Twój dzień. Zapraszam do zapoznania się z ciekawą ofertą sprzedaży gustownego apartamentu w Międzyzdrojach.

Prestiżowa lokalizacja, doceniana przez turystów z Polski i z zagranicy. Luksusowe hotele, czyste, piaszczyste plaże i zadbane kąpieliska już dawno stały się wizytówką tego miejsca. W okresie letnim Międzyzdroje przyciągają fanów polskiego kina, kitesurfingu i długich nadmorskich spacerów. Woliński Park Narodowy wyróżnia miasto na tle innych nadmorskich miejscowości.

Ofertą sprzedaży jest apartament klasy LUX położony na 3 piętrze bardzo dobrze utrzymanego apartamentowca. Budynek położony w pierwszej linii zabudowy od plaży. W najbliższym sąsiedztwie znajdują się: piękna trasa spacerowo rekreacyjna - nowa promenada, liczne restauracje, punkty rekreacyjne, strzeżony parking.
Ośrodek wczasowy położony jest na uboczu, tuż przy plaży, z dala od tłumów i zgiełku miasta.

Apartament o podwyższonym standardzie, bardzo gustownie urządzony. Przyjemna kolorystyka zgodna z najnowszymi trendami wyposażenia wnętrz. Zabudowa stała o podwyższonym standardzie.
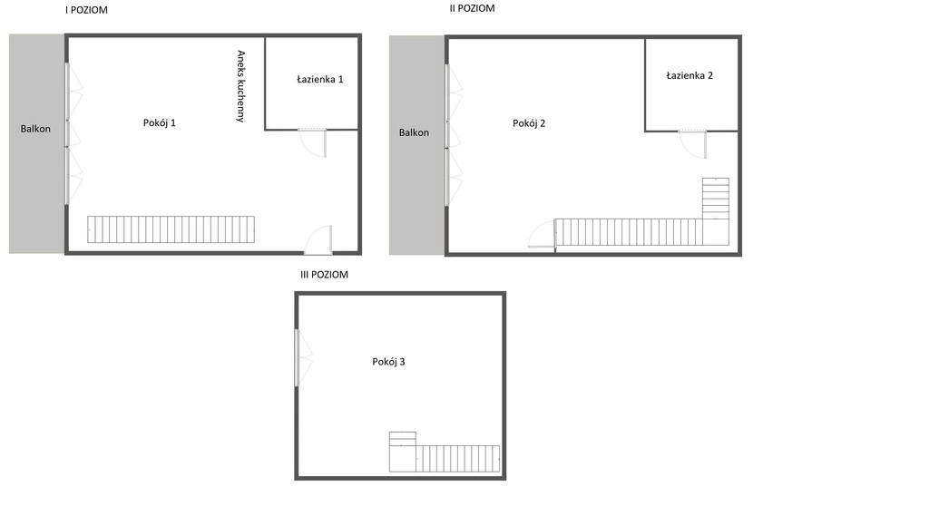
Ciekawy układ pomieszczeń - 3 kondygnacje, na każdej znajduje się pokój sypialny/salon.
Z salonu i pokoju sypialnego (I i II kondygnacja) wyjście na bardzo duży balkon/taras, wystawa okien od strony wschodniej.

Na powierzchnię całkowitą nieruchomości ok 117 m2 ( powierzchnia użytkowa ok. 83m2) składają się:
- I kondygnacja - pokój dzienny/ salon ( z wyjściem na balkon/taras) z kuchnia w formie aneksu, łazienka z kabiną prysznicową oraz toaletą,
- II kondygnacja - bardzo duży pokój sypialny ( z wyjściem na balkon/taras), łazienka z kabiną prysznicową i toaletą, pomieszczenie gospodarcze,
- III poziom - pokój sypialny/ biuro.

Oferta godna polecenia zarówno na użytek własny jak i pod wynajem stanowiąc tym samym nieruchomość ŚWIETNA INWESTYCJĄ.
Apartamentowiec cieszy się bardzo dobrą opinią turystów i generuje duże zyski w skali roku.

Polecam ze względu na atrakcyjną lokalizację, wysoki standard wyposażenia oraz PEWNY ZYSK Z INWESTYCJI.

Serdecznie zapraszam na prezentację i spacer brzegiem morza..

Szczegóły u opiekuna oferty - Oferta Tylko u Nas, Klucze w biurze.


Szczegóły
Rodzaj oferty Mieszkanie na sprzedaż
Liczba pokoi 3
Liczba łazienek 2
Liczba pięter 5
Powierzchnia 83 m2
Cena 1 490 000 zł (17 951 zł/m2)
Forma prawna Własność
Rodzaj budynku Budynek apartamentowy
Rok budowy 2013
Materiał Cegła
Rodzaj ogrzewania elektryczne
Komunikacja autobus
Dostępne w okolicy bar, sklep, restauracja, las, morze, plac zabaw
Dodatkowo monitoring