POWIERZCHNIA (M²)

CENA ZA M²

PIĘTRO

LICZBA POKOI

ROK BUDOWY

RYNEK

NUMER OFERTY

Poprzednia oferta
Powrót
Następna oferta

3 pokoje z potencjałem do remontu | Brama Portowa

Mieszkanie na sprzedaż

Lokalizacja Szczecin Centrum
Aleja Niepodległości
Numer oferty 115/13324/O
Rodzaj budynku Niski blok
Rok budowy 1960
Materiał Wielka Płyta
Liczba pokoi 3
Powierzchnia 61 m2
Cena 490 000 zł

Opis

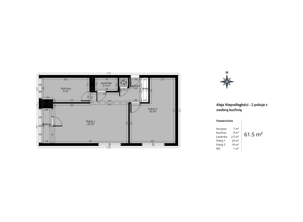
Przedstawiamy ofertę sprzedaży przestronnego mieszkania przy Al. Niepodległości – tuż obok Bramy Portowej – świetna propozycja dla osób szukających mieszkania w Centrum lub pod inwestycję na wynajem. Trzy pokoje z możliwością powrotu do pierwotnego układu 2-pokojowego z osobną kuchnią lub utworzenie 3 pokoi z kuchnią połączoną z salonem.
 
Mieszkanie:
* powierzchnia 61,44 m2, III piętro
* w obecnym układzie mamy ustawny korytarz z szafą w zabudowie, 3 osobne pokoje, dużą kuchnię, łazienkę i osobno wc, zabudowany balkon
* bardzo duży potencjał, jeśli chodzi o aranżację – stan obecny oraz możliwe zmiany przedstawione na rzutach
* ściany i podłogi – do remontu
* okna pcv w dobrym stanie
* mieszkanie słoneczne i ciepłe, orientacja na południe i zachód
* wymieniona instalacja grzewcza
 
Budynek:
* niski blok z lat 60-tych
* schludna i czysta klatka schodowa
* zamknięte podwórko z bramą otwieraną elektrycznie
* plac zabaw dla dzieci
 
Okolica:
Brama Portowa to serce Szczecina – miejsce, w którym historia spotyka się z nowoczesnością. To tu krzyżują się główne szlaki miasta, a każdy spacer zamienia się w podróż przez wieki. Dawna brama wjazdowa do miasta do dziś stanowi wyjątkowy punkt orientacyjny.
Rewelacyjna lokalizacja dla osób szukających mieszkania w Centrum. W okolicy znajdziemy absolutnie wszystko – od dużych węzłów komunikacji miejskiej, sklepy, punkty handlowe i usługowe, apteki, paczkomaty, a także liczne punkty gastronomiczne i usługowe.
 
Ważne:
* czynsz z zaliczkami na fundusz remontowy, wodę i centralne ogrzewanie, śmieci, utrzymanie czystości itp. 900 zł
* wejście od zamykanego, dobrze utrzymanego podwórza
* ciepła woda i ogrzewanie miejskie
* przynależna spora piwnica (czysta i sucha)


Szczegóły
Rodzaj oferty Mieszkanie na sprzedaż
Liczba pokoi 3
Liczba łazienek 1
Liczba pięter 4
Powierzchnia 61 m2
Cena 490 000 zł (7 975 zł/m2)
Forma prawna Własność
Rodzaj budynku Niski blok
Rok budowy 1960
Materiał Wielka Płyta
Rodzaj ogrzewania co miejskie
Komunikacja autobus, tramwaj, , kolejka podmiejska, kolej