POWIERZCHNIA (M²)

CENA ZA M²

PIĘTRO

LICZBA POKOI

ROK BUDOWY

RYNEK

NUMER OFERTY

Poprzednia oferta
Powrót
Następna oferta

3.pok. przy Puszczy Bukowej-do zamieszkania!

Mieszkanie na sprzedaż

Lokalizacja Szczecin os. Bukowe
ul. Pomarańczowa
Numer oferty INW33667
Rodzaj budynku Niski blok
Rok budowy 1996
Materiał Cegła
Liczba pokoi 3
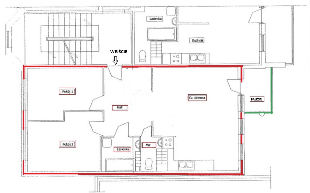
Powierzchnia 64 m2
Cena 670 000 zł

Opis

SPÓŁDZIELCZO-WŁASNOŚCIOWE - Mieszkanie 3-pokojowe przy Puszczy Bukowej – Gotowe do Zamieszkania!

Zapraszamy do zapoznania się z ofertą sprzedaży przestronnego, 3-pokojowego mieszkania o powierzchni 64,90 m2, zlokalizowanego na cenionym Osiedlu Bukowym (ul. Pomarańczowa, Szczecin Prawobrzeże). Mieszkanie znajduje się na 1. piętrze w solidnym 5-piętrowym bloku z cegły, co gwarantuje trwałość i komfort termiczny.

Lokalizacja, Komfort i Natura
Kluczowym atutem jest lokalizacja:

  • Bezpośrednie sąsiedztwo Puszczy Bukowej – idealne dla osób ceniących ciszę, rekreację i aktywny wypoczynek na łonie natury.
  • Dodatkowo, piękny park tuż na tyłach bloku.
  • Parking: Bezpłatne, rotacyjne miejsca postojowe dostępne bezpośrednio pod blokiem, eliminujące problem z parkowaniem.
  • W zasięgu krótkiego spaceru pełna infrastruktura: szkoła, przedszkole, sklepy, kościół i pętla autobusowa.
  • Szybki dojazd do Centrum przy zachowaniu ciszy i kameralności okolicy.


Funkcjonalny i Odnowiony Układ
Mieszkanie jest w bardzo dobrym stanie (po wymianie okien, remoncie łazienki/toalety oraz podłóg/drzwi), gotowe do natychmiastowego wprowadzenia.
Na metraż składają się:
  • Duży pokój z bezpośrednim wyjściem na balkon – widok na park.
  • Aneks kuchenny z oknem (łączny z dużym pokojem), umeblowany i wyposażony w sprzęt AGD.
  • Dwie sypialnie (jedna duża z szafą w zabudowie, druga mniejsza także z szafą).
  • Duży przedpokój z zabudową typu komandor.
  • Łazienka z wanną
  • Oddzielna toaleta.
  • Do mieszkania przynależy piwnica.


Stan prawny – spółdzielcze własnościowe prawo do lokalu z Księgą Wieczystą.

Mieszkanie gotowe do wydania od zaraz.
Polecam i zapraszam na prezentację.


Szczegóły
Rodzaj oferty Mieszkanie na sprzedaż
Liczba pokoi 3
Liczba łazienek 1
Liczba pięter 5
Powierzchnia 64 m2
Cena 670 000 zł (10 323 zł/m2)
Forma prawna Własność
Rodzaj budynku Niski blok
Rok budowy 1996
Materiał Cegła
Rodzaj ogrzewania co miejskie