POWIERZCHNIA (M²)

CENA ZA M²

PIĘTRO

LICZBA POKOI

ROK BUDOWY

RYNEK

NUMER OFERTY

Poprzednia oferta
Powrót
Następna oferta

Piękne mieszkanie 3/4 pokoje! Warszewo, Taras!

Mieszkanie na sprzedaż

Lokalizacja Szczecin Warszewo
ul. Kalinowa
Numer oferty BON48649
Rodzaj budynku Niski blok
Rok budowy 2017
Materiał Cegła
Liczba pokoi 4
Powierzchnia 91 m2
Cena 1 100 000 zł

Opis

Polecam naprawdę pięknie urządzone, duże mieszkanie na Warszewie.
Prestiżowe, zielone osiedle na obrzeżach Szczecina, a zarazem blisko Centrum. Ogromnym atutem jest pobliska Puszcza Wkrzańska - idealnie dla miłośników terenów zielonych i właścicieli czworonogów. 

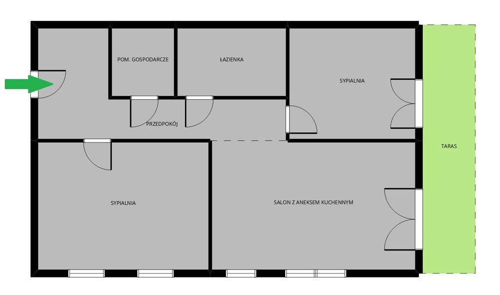
Pierwotnie (oraz według księgi wieczystej) mieszkanie było 4 pokojowe. Obecni właściciele na etapie urządzania, połączyli 2 sypialnie w jedną wielką. Stawiając jedną ściankę oraz drzwi, niewielkim kosztem można uzyskać mieszkanie 4-pokojowe.   

Na powierzchnię 91,72 m2 składają się:
- przestronny, niesamowicie doświetlony salon z aneksem kuchennym. Zabudowa kuchenna aż do sufitu, wysokiej jakości, robiona na wymiar wraz z wyspą. Z salonu wychodzi się na bardzo słoneczny taras z południową wystawą,
- sypialnia z szafą w zabudowie oraz wyjściem na wspomniany wyżej taras,
- duża sypialnia powstała w wyniku połączenia 2 pokoi,
- łazienka w nowoczesnej glazurze i terakocie,
- pomieszczenie gospodarcze,
- przedpokój z szafą w zabudowie.
Całe mieszkanie urządzone i wyposażone w bardzo wysokim standardzie. Nie wymaga absolutnie żadnych nakładów. 
Jest możliwość zakupu mieszkania wraz z częścią wyposażenia, jest to kwestia do negocjacji.

Czynsz z zaliczką na zimną wodę wynosi 770 zł. Dodatkowo ogrzewanie i ciepła woda z sieci miejskiej (SEC).
W cenie mieszkania zawarta jest już cena za komórkę lokatorską o powierzchni 3,87 m2.

Za dodatkową kwotę 100 tyś zł, można kupić miejsce postojowe znajdujące się w budynku obok.

Zapraszam na niewątpliwie miłą dla oka prezentację.
Planujesz skredytować to marzenie – zadzwoń.


Szczegóły
Rodzaj oferty Mieszkanie na sprzedaż
Liczba pokoi 4
Liczba łazienek 1
Liczba pięter 2
Powierzchnia 91 m2
Cena 1 100 000 zł (11 993 zł/m2)
Forma prawna Własność
Rodzaj budynku Niski blok
Rok budowy 2017
Materiał Cegła
Stan budynku Idealny
Dodatkowo internet    telewizja kablowa    piwnica