POWIERZCHNIA (M²)

CENA ZA M²

PIĘTRO

LICZBA POKOI

ROK BUDOWY

RYNEK

NUMER OFERTY

Poprzednia oferta
Powrót
Następna oferta

M4 deweloperka 2 pokoje w centrum nowa inwestycja

Mieszkanie na sprzedaż

Lokalizacja Szczecin Śródmieście-Centrum
ul. Bohaterów Getta Warszawskiego
Numer oferty BON48632
Rodzaj budynku Kamienica
Rok budowy 2026
Materiał Cegła
Liczba pokoi 2
Powierzchnia 34 m2
Cena 423 250 zł

Opis

Planujesz skredytować to marzenie – zadzwoń

Nowa inwestycja znanego dewelopera - adaptacja poddasza w kamienicy z 1930 roku,  w centrum miasta, oddanie w sierpniu 2026.

Zamieszkaj w nowym mieszkaniu-stan deweloperski do wykończenia wg własnego uznania.

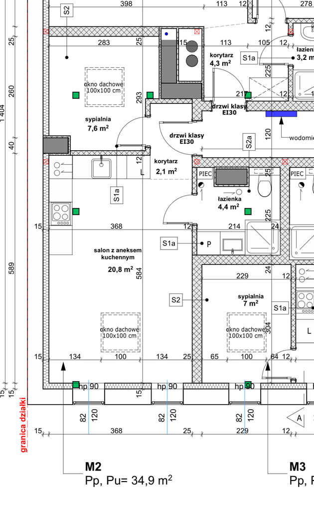
Na powierzchnię 34,4 m2 składają się:

  • salon z aneksem kuchennym 18,2 m2
  • sypialnia 9,5 m2
  • łazienka 3,8 m2
  • korytarz 2,9 m2

Ogrzewanie: gazowe, piec dwuobiegowy /CO,CW/

OPŁATY: czynsz ok 300zł (zaliczki na wodę, FR) gaz i prąd wg zużycia
MEDIA: ciepła woda-z pieca gazowego, CO gazowe,
OKOLICA: liczne sklepy, komunikacja miejska: od 200 do 500 m, bary, restauracje, Galeria Kaskada 1200 m.

Kupujący nie płaci PCC.

W sumie inwestycja obejmuje 5 apartamentów 2 pokojowych od 28 m2 do 36 m2 (ceny zaczynają się od 355000 zł).

Zapraszam do kontaktu.




Szczegóły
Rodzaj oferty Mieszkanie na sprzedaż
Liczba pokoi 2
Liczba łazienek 1
Liczba pięter 4
Powierzchnia 34 m2
Cena 423 250 zł (12 303 zł/m2)
Forma prawna Własność
Rodzaj budynku Kamienica
Rok budowy 2026
Materiał Cegła
Stan budynku Bardzo dobry