Mieszkanie na sprzedaż
| Lokalizacja | Szczecin Centrum | |
|---|---|---|
| Numer oferty | IDN33777 | |
| Rodzaj budynku | Niski blok | |
| Rok budowy | 1955 | |
| Materiał | Cegła | |
| Liczba pokoi | 2 | |
| Powierzchnia | 51 m2 | |
| Cena | 499 000 zł |
Polecam na sprzedaż mieszkanie 2 pokojowe położone w Centrum Szczecina na Złotym Szlaku. Znakomita lokalizacja dla osób pragnących korzystać z uroków miasta. W koło wiele atrakcji, kino, restauracje, siłownie i wszystkie obiekty użyteczności publicznej, oraz komunikacja miejska. Blisko do Parku Żeromskiego i na Wały Chrobrego, oraz na Jasne Błonia.
Dodatkową zaletą jest możliwość parkowania na wewnętrznym zamykanym zielonym podwórku.
Budynek z cegły z lat 50-tych. Odnowiony front, czysta klatka schodowa.
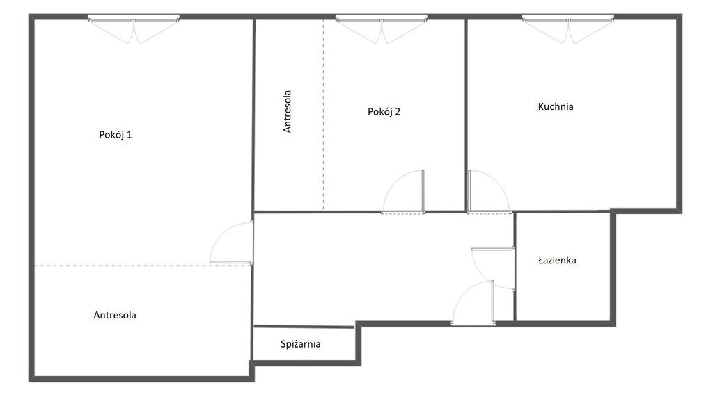
Na powierzchnię całkowitą mieszkania 51,22 m2 składają się: 2 samodzielne pokoje o powierzchni około 21 i 13 m2 z wysokimi sufitami dającymi wrażenie przestronności. Każdy pokój z antresolą, co stwarza możliwość wykorzystania powierzchni pod nimi i daje wygodne miejsca do spania. Oddzielna, widna kuchnia. z meblami w zabudowie i miejscem na stół. Łazienka z kabiną prysznicową i WC. Przedpokój z dwoma szafami w zabudowie oraz oddzielny schowek (ok 1m2). Rozkładowy układ pomieszczeń prezentuje załączony rzut. Okna PCV.
Ogrzewanie z sieci miejskiej, ciepła woda z pieca gazowego ( piecyk ma 3 lata). Czynsz w wysokości 593 zł przy 2 zamieszkałych osobach .
W cenie mieszkania pozostaje pełne umeblowanie kuchni wraz z wyposażeniem AGD, pełne wyposażenie łazienki, pozostałe umeblowanie do uzgodnienia.
Do mieszkania przynależy piwnica o powierzchni około 4 m2 z wykaflowaną podłogą z szafami w zabudowie. mogąca służyć za garderobę.
Ze względu na lokalizację znakomita ofert pod wynajem długo i krótko terminowy.
Polecam i zapraszam na prezentację.
| Rodzaj oferty | Mieszkanie na sprzedaż | ||
|---|---|---|---|
| Liczba pokoi | 2 | ||
| Liczba łazienek | 1 | ||
| Liczba pięter | 4 | ||
| Powierzchnia | 51 m2 | ||
| Cena | 499 000 zł (10 015 zł/m2) | ||
| Forma prawna | Własność | ||
| Forma prawna gruntu | Użytkowanie wieczyste | ||
| Rodzaj budynku | Niski blok | ||
| Rok budowy | 1955 | ||
| Materiał | Cegła | ||
| Stan budynku | Dobry | ||
| Rodzaj ogrzewania | co miejskie | ||
| Komunikacja | kolej, PKS, tramwaj, autobus | ||
| Dostępne w okolicy | kościół, park, bank, przedszkole, apteka, szkoła, restauracja, centrum handlowe, plac zabaw, fitnes | ||
| Dodatkowo | piwnica    monitoring     |