POWIERZCHNIA (M²)

CENA ZA M²

PIĘTRO

LICZBA POKOI

ROK BUDOWY

RYNEK

NUMER OFERTY

Poprzednia oferta
Powrót
Następna oferta

Piękne mieszkanie w centrum Szczecina

Mieszkanie na sprzedaż

Lokalizacja Szczecin Śródmieście
ul. Andrzeja Małkowskiego
Numer oferty INW33381
Rodzaj budynku Kamienica
Rok budowy 1920
Materiał Cegła
Liczba pokoi 2
Powierzchnia 60 m2
Cena 489 000 zł

Opis


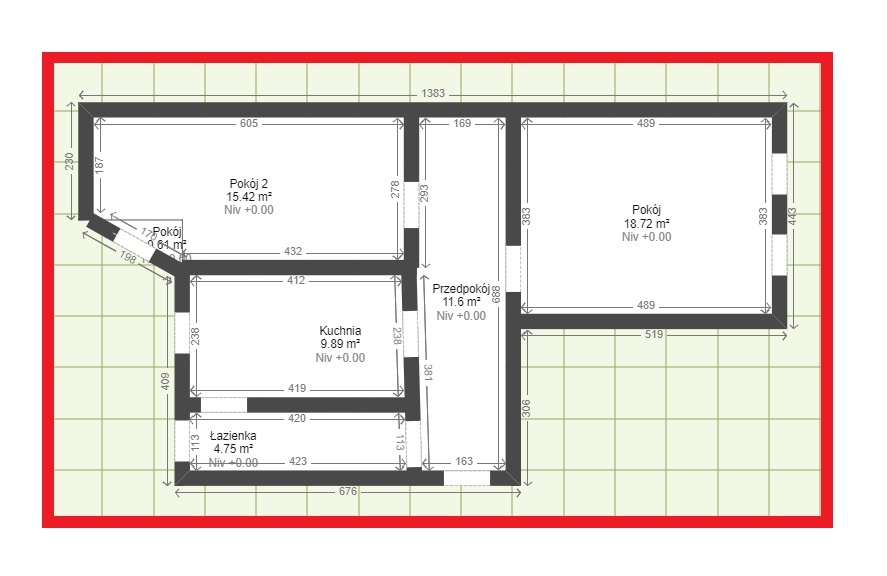
???? Przestronne mieszkanie 2-pokojowe z potencjałem – 60,4 m² | I piętro
Z przyjemnością prezentujemy Państwu komfortowe mieszkanie o powierzchni 60,4 m², usytuowane na pierwszym piętrze zadbanego budynku. Nieruchomość wyróżnia się funkcjonalnym układem pomieszczeń oraz dużym potencjałem

???? Lokalizacja i otoczenie Mieszkanie znajduje się w dynamicznie rozwijającej się okolicy, w bezpośrednim sąsiedztwie licznych sklepów, szkół, uczelni oraz przystanków komunikacji miejskiej. Dzielnica przechodzi obecnie gruntowną modernizację infrastruktury drogowej i chodników, co wpływa na wzrost jej wartości. W najbliższym czasie planowana jest również termomodernizacja frontowej elewacji budynku.

???? Układ i standard wykończenia

  • Dwa przestronne pokoje z niezależnym wejściem z przedpokoju
  • Duża, jasna kuchnia z oknem w pełni wyposażona – oddzielna i funkcjonalna
  • Dodatkowa przestrzeń idealna na garderobę lub domowe biuro
  • Dwustronna ekspozycja okien zapewniająca naturalne światło przez cały dzień
  • Łazienka z prysznicem i toaletą

Mieszkanie przeszło remont: wymieniono instalację elektryczną oraz piony wodno-kanalizacyjne, położono nowe podłogi, a ściany zostały wygładzone i pomalowane. 
Istnieje możliwość wykupienia sąsiedniego pomieszczenia (ok. 5 m²), co pozwoli na stworzenie komfortowej strefy kąpielowej.
???? Dodatkowe informacje
  • Ogrzewanie z nowoczesnego, programowalnego pieca gazowego
  • Niski czynsz: ok. 250 zł
  • Zadbane patio z zielenią oraz kontrola dostępu przy wejściu do budynku
  • Mieszkanie dostępne od zaraz
???? Zapraszamy do kontaktu Jeśli mają Państwo pytania lub chcieliby umówić się na prezentację – jesteśmy do dyspozycji.







Szczegóły
Rodzaj oferty Mieszkanie na sprzedaż
Liczba pokoi 2
Liczba łazienek 1
Liczba pięter 3
Powierzchnia 60 m2
Cena 489 000 zł (8 096 zł/m2)
Forma prawna Własność
Rodzaj budynku Kamienica
Rok budowy 1920
Droga dojazdowa Asfaltowa
Materiał Cegła
Stan budynku Dobry
Rodzaj ogrzewania gazowe
Komunikacja autobus, tramwaj
Dostępne w okolicy kościół, basen, bar, plac zabaw, przedszkole, szpital, restauracja, sklep, centrum handlowe, szkoła, bank, zabudowa niska, apteka, fitnes, przychodnia lekarska, uczelnia
Dodatkowo internet    telewizja kablowa    piwnica    monitoring