Mieszkanie na sprzedaż
| Lokalizacja |
Szczecin Centrum ul. Andrzeja Małkowskiego |
|
|---|---|---|
| Numer oferty | HOR21667 | |
| Rodzaj budynku | Kamienica | |
| Rok budowy | 1930 | |
| Materiał | Cegła | |
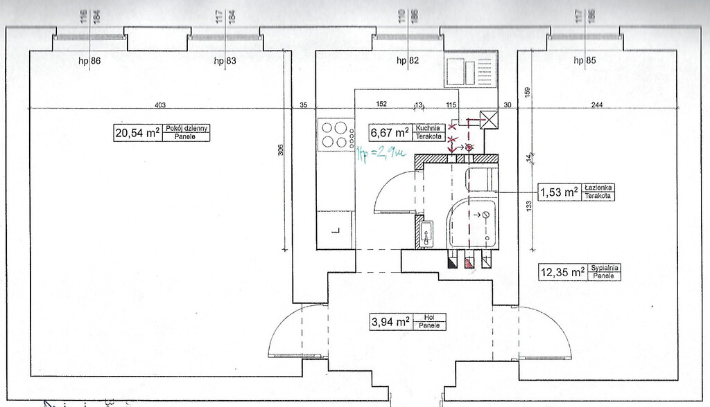
| Liczba pokoi | 2 | |
| Powierzchnia | 45 m2 | |
| Cena | 419 000 zł |
Bardzo ładne mieszkanie 2-pokojowe o powierzchni użytkowej 45m2, znajdujące się na 3 piętrze w odrestaurowanej kamienicy w ścisłym Centrum, w okolicy Placu Zgody i Centrum Handlowego Kupiec. Lokal mieszkalny znajduje się przy ulicy o małym natężeniu ruchu aut. Miejsca do parkowania ogólnodostępne w strefie płatnego parkowania.
Mieszkanie przeszło kilka lat temu kapitalny remont. Ściany wygładzone malowane, na podłodze panele, w przedpokoju i kuchni terakota. Nowa instalacja elektryczna, instalacje wodno-kanalizacyjne. Nowe okna pcv.
Przestrzenne pokoje rozkładowe o powierzchni 20 i 12m2. Kuchnia widna z oknem. Łazienka wydzielona z części kuchni, zalegalizowana w księdze wieczystej. W łazience znajduje się kabina prysznicowa, wc i umywalka. W kuchni ładna zabudowa ze sprzętem agd jak lodówka, zmywarka, piekarnik, płyta elektryczna z okapem i pralka. Nowe drzwi antywłamaniowe.
Ogrzewanie i ciepła woda z nowego pieca gazowego II-obiegowego kondensacyjnego (1,5 roku). Czynsz w wysokości 360zł wraz funduszem remontowym 60zł. Idealna oferta zarówno pod wynajem, jak i do mieszkania. Mieszkanie można nabyć z większością umeblowania, do ustalenia.
Kamienica po remoncie zarówno wewnątrz, jak i zewnątrz z nową elewacją. Do dyspozycji właścicieli piwnica.
W promieniu zaledwie 200m spacerkiem od mieszkania znajdują się kino Helios, Centrum Handlowe Kupiec, sklep Netto, Rossmann oraz uczelnie wyższe, przystanki komunikacji miejskiej oraz liczne lokale usługowe.
Termin wydania do ustalenia.
| Rodzaj oferty | Mieszkanie na sprzedaż | ||
|---|---|---|---|
| Liczba pokoi | 2 | ||
| Liczba łazienek | 1 | ||
| Liczba pięter | 4 | ||
| Powierzchnia | 45 m2 | ||
| Cena | 419 000 zł (9 304 zł/m2) | ||
| Forma prawna | Własność | ||
| Rodzaj budynku | Kamienica | ||
| Rok budowy | 1930 | ||
| Droga dojazdowa | Kostka brukowa | ||
| Materiał | Cegła | ||
| Stan budynku | Bardzo dobry | ||
| Dodatkowo | internet    telewizja kablowa    piwnica    monitoring     |