POWIERZCHNIA (M²)

CENA ZA M²

PIĘTRO

LICZBA POKOI

ROK BUDOWY

RYNEK

NUMER OFERTY

Poprzednia oferta
Powrót
Następna oferta

Oferta ROY04241

Mieszkanie na sprzedaż

Lokalizacja Moczkowo
Numer oferty ROY04241
Rodzaj budynku Dom
Rok budowy 2025
Materiał Bloczki
Liczba pokoi 4
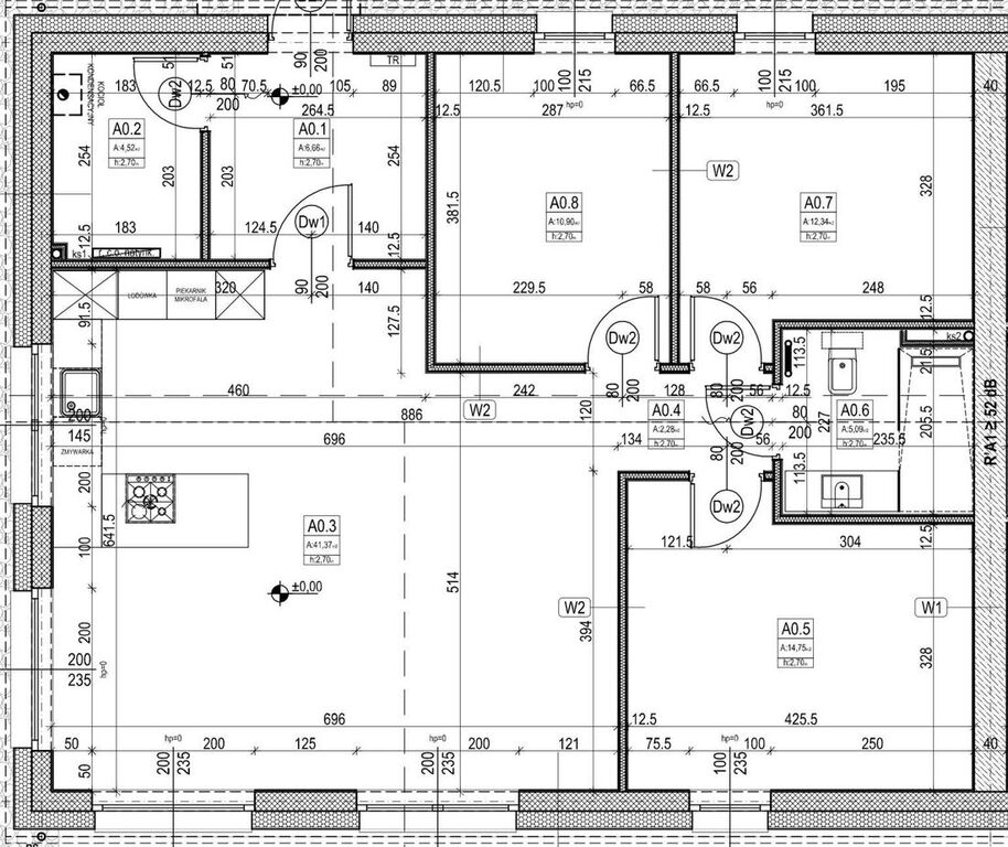
Powierzchnia 100 m2
Cena 599 000 zł

Opis

## Nowoczesny bliźniak 100 m² z możliwością rozbudowy – Barlinek


**Lokalizacja**

Miejscowość : okolice Barlinka, woj. zachodniopomorskie – spokojna, zielona okolica z dobrym dostępem do infrastruktury miejskiej.

**Powierzchnia i cena**

* Powierzchnia użytkowa: ok. 100 m²

* Dodatkowo: strych ok. 40 m² do adaptacji

* Cena: 599 000 zł


### Standard wykończenia i zalety techniczne

* **Energooszczędna konstrukcja**:

* Elewacja z 20 cm styropianem grafitowym

* Dach (stropodach) ocieplony 40 cm wełną

* Podłogi z 20 cm styropianem

– wszystkie te elementy przekładają się na niskie koszty ogrzewania


* **Wykończenie w standardzie deweloperskim**:

* Tynki i wylewki cementowe

* Wykonane instalacje: elektryczna, sanitarna

* Istnieje możliwość wyboru – piec gazowy lub pompa ciepła, ogrzewanie podłogowe



* **Systemy i zabezpieczenia**:

* Okna trzyszybowe zapewniające dobrą izolację

* Przygotowane miejsce na rolety kasetowe

* Instalacja przygotowana pod alarm oraz monitoring

* Teren utwardzony przed budynkiem – brak konieczności natychmiastowych poprawek


### Strych do adaptacji (40 m²)

Dodatkowy potencjał: przestrzeń na poddaszu w stanie surowym, gotowa do własnej aranżacji – idealna jako pracownia, pokój hobby lub sypialnia.


!!! Uwaga została tylko prawa strona bliźniaka !!!


### Termin oddania nieruchomości

Przekazanie nieruchomości przewidziane na **wrzesień 2025 r.**



## Dlaczego warto rozważyć tę ofertę zamiast standardowego mieszkania?

* **Bliźniak w stanie deweloperskim** = samodzielność w wykończeniu i aranżacji wnętrz.

* **Wysoki standard izolacji** to realne oszczędności energetyczne.

* **Flexibility**: możliwość dopasowania systemów grzewczych i adaptacji strychu według własnych potrzeb.

* **Spokojna lokalizacja**, ale z szybkim dostępem do Barlinka i okolicy.

* **Brak konieczności dopłacania podatku PCC** – standard przy umowach deweloperskich

Serdecznie zapraszamy na prezentację. Być może to jest to czego szukasz !


Szczegóły
Rodzaj oferty Mieszkanie na sprzedaż
Liczba pokoi 4
Liczba łazienek 1
Liczba pięter 1
Powierzchnia 100 m2
Cena 599 000 zł (5 990 zł/m2)
Forma prawna Własność
Rodzaj budynku Dom
Rok budowy 2025
Materiał Bloczki
Stan budynku Stan deweloperski
Dodatkowo alarm    ogród    recepcja    monitoring