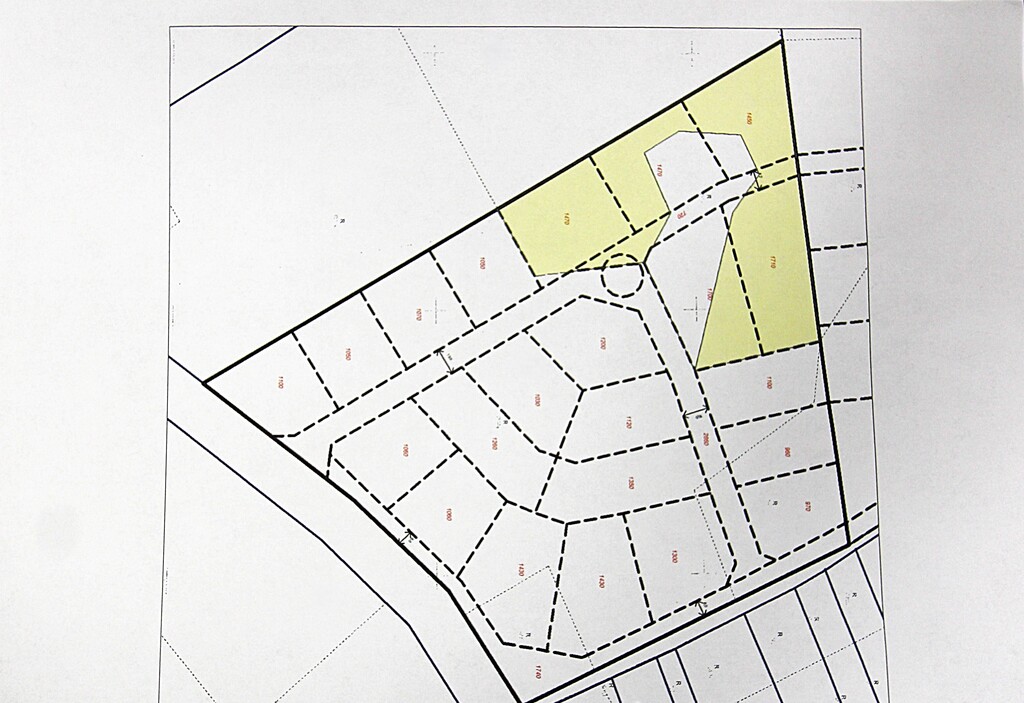
Ofertą jest sprzedaż działek w miejscowości Bielkowo, gm. Kobylanka. Łączna powierzchnia działek wraz z pełną infrastrukturą drogową wynosi 32 963 m². Działki idealnie nadają się pod zabudowę jednorodzinną lub przemysłowo-usługową, zgodnie z kierunkami wyznaczonymi w Studium Uwarunkowań i Kierunków Zagospodarowania Przestrzennego. Doskonała lokalizacja – tylko 5 km od węzła Motaniec (S10)
Parametry zabudowy:
Powierzchnia zabudowy: do 17% powierzchni działki
Powierzchnia biologicznie czynna: minimum 60%
Dojazd: utwardzona droga wewnętrzna
Media: woda, prąd, gaz – w drodze przy działkach
Kanalizacja: planowana realizacja do połowy przyszłego roku
Lokalizacja i atuty:
5 km do węzła Motaniec (droga ekspresowa S10) – szybki dojazd do Szczecina (ok. 30 min) i Stargardu (ok. 10 min)
3 km do Jeziora Miedwie – jedno z największych jezior w Polsce, idealne do rekreacji
Cicha, spokojna okolica – atrakcyjna zarówno dla inwestora deweloperskiego, jak i firm poszukujących terenów pod działalność
Atuty inwestycyjne:
Możliwość realizacji osiedla domów jednorodzinnych lub zakładów usługowych/magazynowych
Pełna infrastruktura drogowa i dostępność mediów
Atrakcyjne warunki zabudowy
Bliskość głównych arterii komunikacyjnych
???? Zainteresowanych inwestorów zapraszam do kontaktu po więcej szczegółów oraz dokumentację. ???? Możliwość oględzin w terenie po wcześniejszym umówieniu.
Szczegóły
Rodzaj oferty
Działka na sprzedaż
Działka
27330
Cena
3 142 950 zł (115 zł/m2)
Forma prawna gruntu
Własność
Droga dojazdowa
Asfaltowa
Komunikacja
Dostępne w okolicy
przedszkole, plac zabaw, kościół, sklep, las, zabudowa niska, jezioro