POWIERZCHNIA (M²)

CENA ZA M²

PIĘTRO

LICZBA POKOI

ROK BUDOWY

RYNEK

NUMER OFERTY

Poprzednia oferta
Powrót
Następna oferta

Nowoczesne mieszkanie z ogródkiem na Pogodnie

Wynajem mieszkania

Lokalizacja Szczecin Pogodno
ul. Romualda Traugutta
Numer oferty ROY04237
Rodzaj budynku Część domu
Rok budowy 1990
Materiał Cegła
Liczba pokoi 4
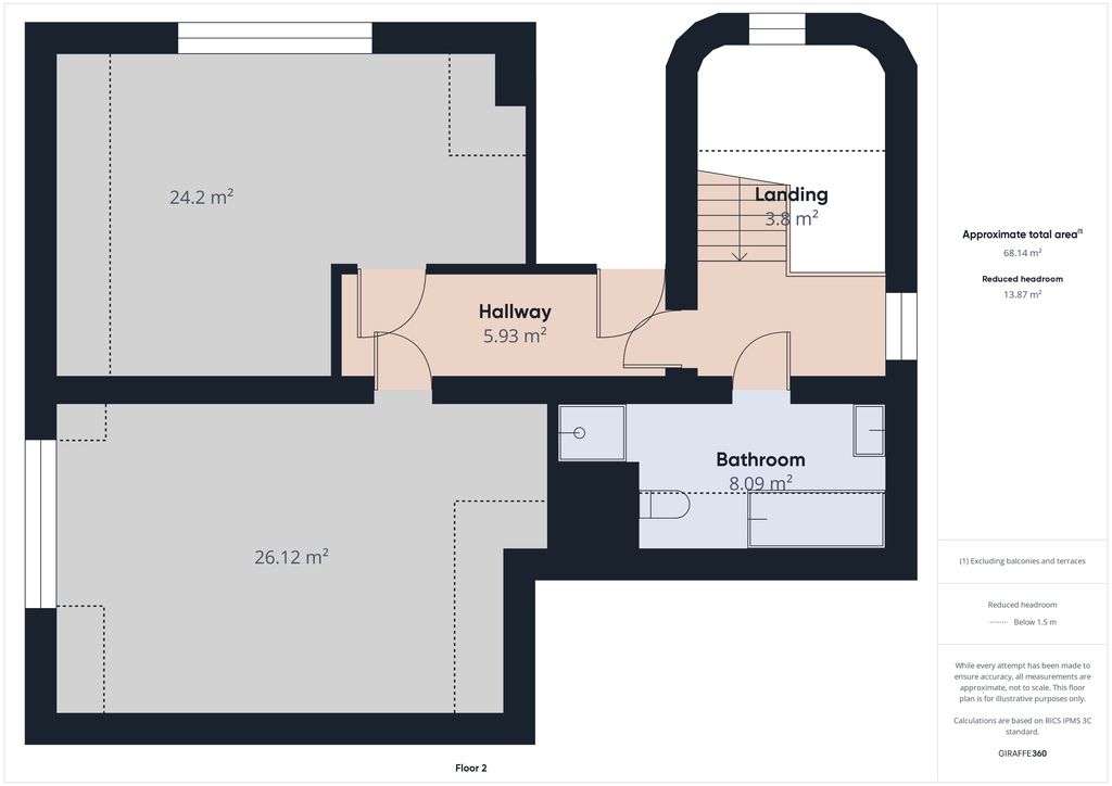
Powierzchnia 155 m2
Cena 5 000 zł

Opis

Zapraszamy do zapoznania się z wyjątkową ofertą nowoczesnego i komfortowego mieszkania o powierzchni 155,30 m2, położonego w atrakcyjnej lokalizacji w dzielnicy Pogodno przy ulicy Romualda Traugutta.



Najważniejsze atuty:

• Doskonała lokalizacja: To miejsce to nie tylko mieszkanie, ale prawdziwe źródło przyjemności i spokoju, gdzie funkcjonalność spotyka się z elegancją, a każdy kąt jest stworzony z myślą o wyjątkowym życiu.

• Wysoki standard wykończenia: Mieszkanie zostało urządzone z dbałością o najmniejsze detale, wykorzystując nowoczesne rozwiązania i materiały najwyższej jakości. To miejsce, które spełni oczekiwania nawet najbardziej wymagających klientów.

• Funkcjonalny układ pomieszczeń: Mieszkanie składa się z przestronnego salonu z aneksem kuchennym, trzech sypialni, garderoby, pralni, łazienki z prysznicem oraz wanną, osobną toaletą. Każde pomieszczenie zostało starannie zaprojektowane, aby zapewnić maksymalny komfort mieszkania.

• Dodatkowe udogodnienia:
Mieszkanie składa się:

klatka schodowa
salon z aneksem kuchennym
sypialnia z garderobą,
garderoba z oknem
toaleta
przedpokój
pom. gospodarcze (miejsce na piec gazowy itp.)
dodatkowe dwie sypialnie
łazienka


Zapraszamy do kontaktu w celu uzyskania dodatkowych informacji oraz umówienia się na prezentację.


Szczegóły
Rodzaj oferty Wynajem mieszkania
Liczba pokoi 4
Liczba łazienek 1
Liczba pięter 2
Powierzchnia 155 m2
Cena 5 000 zł (32 zł/m2)
Forma prawna Własność
Rodzaj budynku Część domu
Rok budowy 1990
Droga dojazdowa Asfaltowa
Materiał Cegła
Stan budynku Bardzo dobry
Rodzaj ogrzewania gazowe
Dostępne w okolicy centrum handlowe, bazarek, apteka, bank, fitnes, kościół, przedszkole, szkoła
Dodatkowo internet    telewizja kablowa    ogród