POWIERZCHNIA (M²)

CENA ZA M²

PIĘTRO

LICZBA POKOI

ROK BUDOWY

RYNEK

NUMER OFERTY

Poprzednia oferta
Powrót
Następna oferta

Tani dom z potencjałem

Dom na sprzedaż

Lokalizacja Szczecin Skolwin
Numer oferty WNF00288
Rok budowy 1965
Materiał Cegła
Liczba pokoi 3
Powierzchnia 90 m2
Działka 1152 m2
Cena 499 000 zł

Opis

Polecam na sprzedaż dom wolnostojący z potencjałem. 

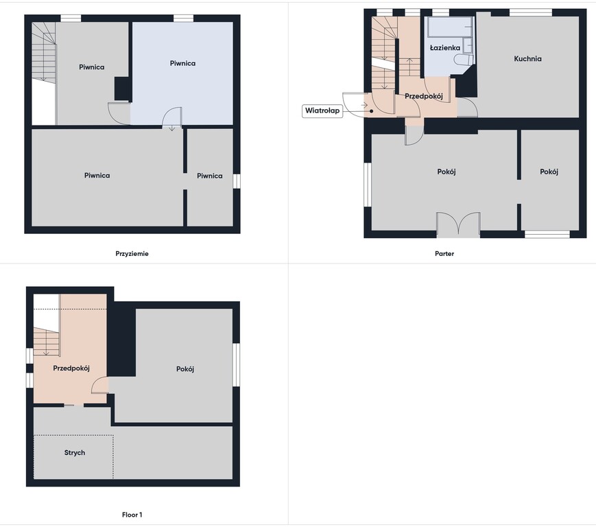
Na powierzchnię 90,30 mkw. składa się:

Parter:
-salon, z którego jest bezpośrednie wyjście na taras
-sypialnia, do której wchodzimy z salonu
-oddzielna kuchnia
-łazienka z WC
-przedpokój

Piętro:
-korytarz
-pokój
-strych

Dodatkowo dom jest w całości podpiwniczony, a piwnica składa się z 4 pomieszczeń. Teren jest w pełni uzbrojony i posiada kanalizację miejską.

Niewątpliwym atutem jest działka o powierzchni 1 152 mkw., dla której Miejscowy Plan Zagospodarowania Przestrzennego przewiduje:
-zabudowę wolnostojącą i bliźniaczą
-maksymalna powierzchnia zabudowy 30%
-maksymalna wysokość zabudowy do 9 metrów.

Zapraszam do osobistej weryfikacji oferty!


Szczegóły
Rodzaj oferty Dom na sprzedaż
Liczba pokoi 3
Liczba łazienek 1
Liczba pięter 1
Powierzchnia 90 m2
Działka 1152
Cena 499 000 zł (5 526 zł/m2)
Forma prawna Własność
Rok budowy 1965
Droga dojazdowa Asfaltowa
Materiał Cegła
Stan budynku Do kapitalnego remontu
Rodzaj ogrzewania gazowe
Komunikacja autobus
Dostępne w okolicy sklep, bar, centrum handlowe, przedszkole, szkoła, park, las, kościół, rzeka