Mieszkanie na sprzedaż
| Lokalizacja |
Szczecin os. Piastowskie ul. św. Marcina |
|
|---|---|---|
| Numer oferty | BON48402 | |
| Rodzaj budynku | Niski blok | |
| Rok budowy | 1980 | |
| Materiał | Wielka Płyta | |
| Liczba pokoi | 2 | |
| Powierzchnia | 45 m2 | |
| Cena | 379 000 zł |
Planujesz skredytować to marzenie – zadzwoń.
Dwupokojowe mieszkanie w atrakcyjnej cenie położone w niskim budynku zlokalizowanym na os. Piastowskim. Miejsce zielone zlokalizowane nieopodal centrum, w pobliżu znajdują się szkoła i przedszkole, Kaufland, Netto, targowisko Manhattan, Fabryka Wody, komunikacja miejska. Przed budynkiem rotacyjne miejsca parkingowe.
Mieszkanie do własnej aranżacji, idealne pod wynajem jak i do własnego użytku.
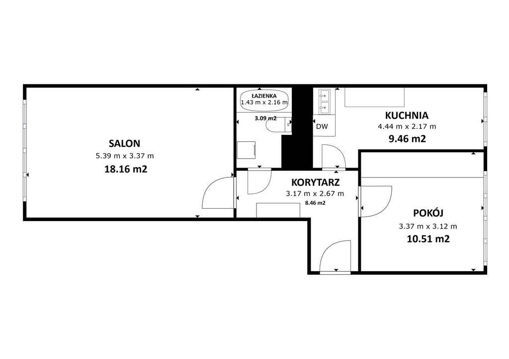
Lokal położony jest na parterze i składa się z:
- przestronnego salonu
- ustawnej sypialni
- oddzielnej kuchni
- łazienki z wc
- korytarza
przynależy piwnica.
Ogrzewanie i woda z sieci miejskiej, czynsz 580 zł z funduszem remontowym. Wydanie od zaraz. Cena do negocjacji.
Zapraszam do skorzystania z wirtualnego spaceru i do obejrzenia na żywo. Klucze w biurze.
| Rodzaj oferty | Mieszkanie na sprzedaż | ||
|---|---|---|---|
| Liczba pokoi | 2 | ||
| Liczba łazienek | 1 | ||
| Liczba pięter | 4 | ||
| Powierzchnia | 45 m2 | ||
| Cena | 379 000 zł (8 258 zł/m2) | ||
| Forma prawna | Własność | ||
| Forma prawna gruntu | Własność | ||
| Rodzaj budynku | Niski blok | ||
| Rok budowy | 1980 | ||
| Materiał | Wielka Płyta | ||
| Stan budynku | Bardzo dobry | ||
| Dodatkowo | piwnica     |