POWIERZCHNIA (M²)

CENA ZA M²

PIĘTRO

LICZBA POKOI

ROK BUDOWY

RYNEK

NUMER OFERTY

Poprzednia oferta
Powrót
Następna oferta

Wynajem - atrakcyjny lokal, Centrum, 118 m2.

Wynajem lokalu usługowego

Lokalizacja Szczecin Centrum
Numer oferty ASP21737
Rodzaj budynku Apartamentowo-handlowy
Rok budowy 1980
Materiał Wielka Płyta
Liczba pokoi 4
Powierzchnia 118 m2
Cena 10 000 zł

Opis

Do wynajęcia narożny lokal użytkowy położony w ścisłym Centrum Szczecina, na parterze budynku mieszkalno-usługowego położonego przy skrzyżowaniu głównych ulic miasta.
Lokalizacja o bardzo dużym natężeniu ruchu pieszego i samochodowego, W SĄSIEDZTWIE GALERII HANDLOWEJ.

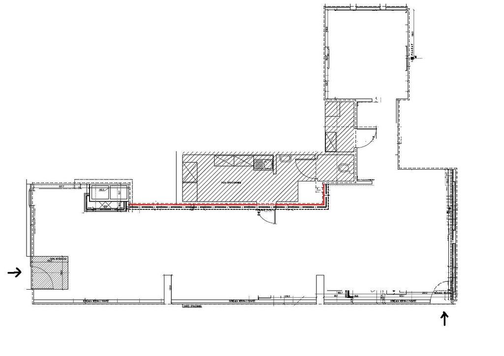
Cały lokal o powierzchni 118 m2 znajduje się na jednym poziomie parteru i składa się z pomieszczeń:
- duża sala sprzedaży/obsługi z dwoma oddzielnymi wejściami z ulicy (jedno wejście bez barier architektonicznych),
- osobny gabinet,
- pomieszczenie socjalne z aneksem kuchennym,
- węzeł sanitarny - WC z umywalką,
- serwerownia.

Wysokość sali sprzedaży do sufitu podwieszanego – 3,00 m, gabinetu i części socjalnej – 3,20 m.
Na podłogach terakota (przykryta wykładziną), ściany gładzone, malowane, sufity podwieszane z oświetleniem rastrowym.
Część socjalna oraz WC wykończone w glazurze i terakocie.
W lokalu rozprowadzona klimatyzacja, instalacja alarmowa oraz sieć teleinformatyczna.

Wysokie, nowoczesne, narożne witryny z szybami antywłamaniowymi typu P4, od poziomu chodnika, na całej szerokości lokalu – zapewniają świetną wizualizację.
Czynsz do zarządcy zawiera opłaty za: ogrzewanie z sieci miejskiej, ciepłą i zimną wodę, ścieki.
Dodatkowe opłaty – energia elektryczna i wywóz śmieci – na postawie odrębnych umów. Do ceny najmu będzie doliczony VAT.

Przeznaczenie lokalu handlowo-usługowe bądź inne, możliwa gastronomia.

W sąsiedztwie lokale handlowe i usługowe wielu branż oraz galeria handlowa.


Szczegóły
Rodzaj oferty Wynajem lokalu usługowego
Liczba pokoi 4
Liczba pięter 10
Powierzchnia 118 m2
Cena 10 000 zł (84 zł/m2)
Forma prawna Własność
Rodzaj budynku Apartamentowo-handlowy
Rok budowy 1980
Materiał Wielka Płyta
Stan budynku Bardzo dobry
Dodatkowo klimatyzacja    winda