POWIERZCHNIA (M²)

CENA ZA M²

PIĘTRO

LICZBA POKOI

ROK BUDOWY

RYNEK

NUMER OFERTY

Poprzednia oferta
Powrót
Następna oferta

Szczecin Centrum Apartament Premium sprzedaż

Mieszkanie na sprzedaż

Lokalizacja Szczecin Śródmieście-Centrum
Potulicka
Numer oferty UBR23254
Rodzaj budynku Blok
Rok budowy 2018
Materiał Silikat
Liczba pokoi 4
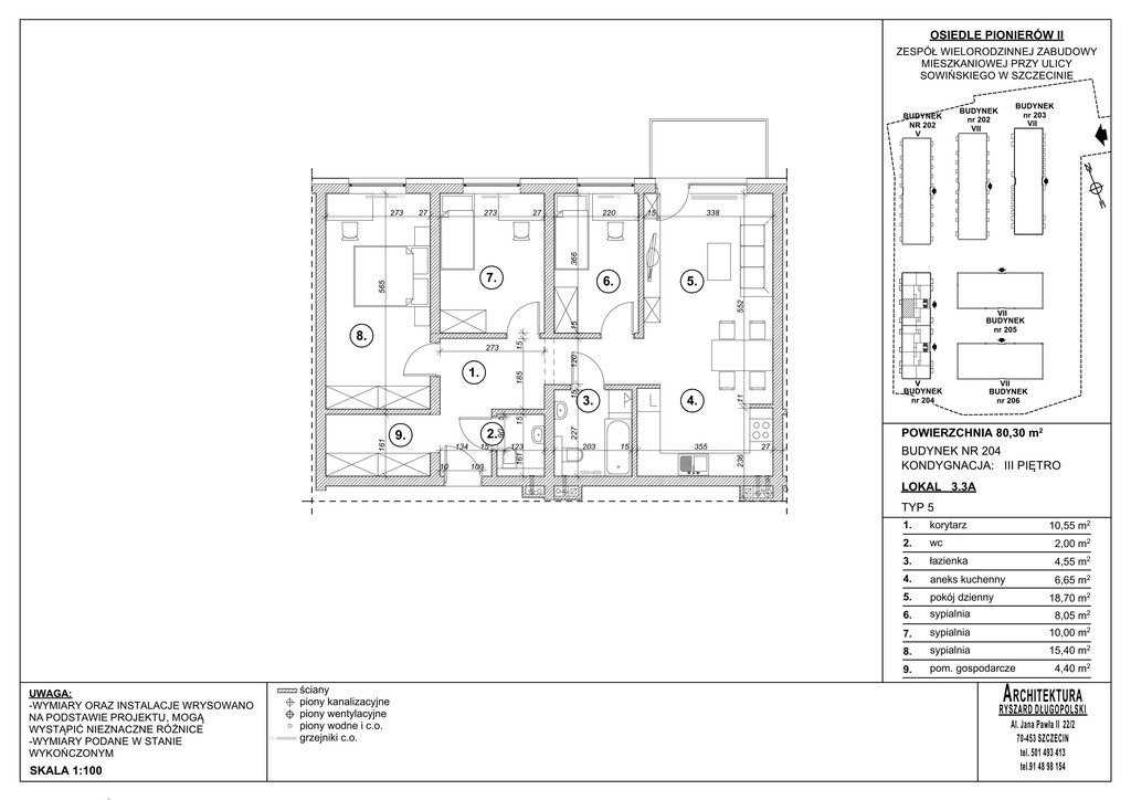
Powierzchnia 80 m2
Cena 1 150 000 zł

Opis


Wyjątkowy Apartament Premium na Osiedlu Pionierów II w Szczecinie – Idealna Propozycja dla Wymagających!

 Prezentujemy na sprzedaż ekskluzywny apartament Premium o powierzchni 80,76 m², zlokalizowany na prestiżowym Osiedlu Pionierów II w Szczecinie.
Ta unikalna oferta skierowana jest do klientów poszukujących najwyższego standardu życia w doskonałej lokalizacji.
Osiedle Pionierów II to zamknięty kompleks mieszkaniowy z dozorcą, zapewniający bezpieczeństwo i komfort. Jego strategiczne położenie w otoczeniu ścisłego centrum miasta gwarantuje dostęp do wszystkich udogodnień miejskiego życia, jednocześnie oferując ucieczkę od zgiełku. Ukryte we wnętrzu kwartału, z dala od ulicznego ruchu, osiedle stanowi oazę spokoju i ciszy.
Apartament, stworzony z myślą o najbardziej wymagających klientach, składa się z:

  • Trzech przestronnych pokoi
  • Jasnego salonu z aneksem kuchennym
  • Dwóch korytarzy
  • Dwóch eleganckich łazienek
  • Balkonu z którego rozpościera się malownicza panorama miasta.
Wnętrza zostały wykończone przy użyciu materiałów z najwyższej półki, co gwarantuje nie tylko estetykę, ale i trwałość. Apartament jest gotowy do zamieszkania i spełni oczekiwania nawet najbardziej wybrednych klientów. TO WSZYSTKO W CENIE! Całość według projektu ( do wglądu).
  • Baterie podtynkowe Grohe (dożywotnia gwarancja)
  • Panele najwyższej jakości (12mm podwójnie laminowane)
  • Lustra podgrzewane, szafki lustrzane z kontaktami wewnątrz szafek
  • Meble wykonane na zamówienie z wykończeniem z stali nierdzewnej ( stół, krzesła stolik)
  • Sypialnia -łózko 2m/2m z pojemnikiem na pościel,  lustro sufitowe na zamówienie.
  • Włoskie płytki w kuchni
  • Blaty kamienne granitowe Galaxy Star
  • Zestaw filtrów-odwrócona osmoza z mineralizatorem, 
  • To nasz czysty lód ! Zestaw  filtrów podłączony do lodówki side by side z kostkarką
  • Garaż- brama automatyczna, 2 miejsca  plus 2 boksy.  

Dodatkowe atuty oferty:

  • Udział w prawie własności gruntu oraz częściach wspólnych nieruchomości.
  • Udział w lokalu niemieszkalnym, obejmujący dwustanowiskowy garaż oraz dwa przyległe boksy rowerowe, co jest niezwykle cennym udogodnieniem w centrum miasta.
  • Bliskość parków i terenów rekreacyjnych pozwala na aktywny wypoczynek na łonie natury, podczas gdy centrum Szczecina pozostaje w zasięgu ręki.
To prawdziwa okazja dla osób ceniących sobie luksus, spokój i doskonałą lokalizację. Nie przegap szansy na posiadanie apartamentu, który łączy w sobie prestiż, komfort i funkcjonalność.
 
Chcielibyśmy podkreślić, że ten wyjątkowy apartament Premium jest dostępny do prezentacji wyłącznie za pośrednictwem naszego Oddziału w Szczecinie.
Zapewniamy pełną poufność danych oraz bezpieczeństwo transakcji na każdym etapie procesu zakupu. Jesteśmy do Państwa dyspozycji, oferując elastyczność w ustalaniu terminów spotkań i prezentacji nieruchomości, aby sprostać Państwa indywidualnym potrzebom.


Szczegóły
Rodzaj oferty Mieszkanie na sprzedaż
Liczba pokoi 4
Liczba łazienek 2
Liczba pięter 4
Powierzchnia 80 m2
Cena 1 150 000 zł (12 329 zł/m2)
Forma prawna Własność
Forma prawna gruntu Własność
Rodzaj budynku Blok
Rok budowy 2018
Materiał Silikat
Rodzaj ogrzewania co miejskie
Komunikacja autobus, tramwaj
Dodatkowo alarm    winda    recepcja    ochrona    monitoring