Mieszkanie na sprzedaż
| Lokalizacja | Szczecin Centrum | |
|---|---|---|
| Numer oferty | FKT24951 | |
| Rodzaj budynku | Niski blok | |
| Rok budowy | 2025 | |
| Materiał | Silikat | |
| Liczba pokoi | 1 | |
| Powierzchnia | 30 m2 | |
| Cena | 571 144 zł |
W nowej inwestycji, w której zastosowano nowoczesne rozwiązania i nowoczesny design w centrum Szczecina.
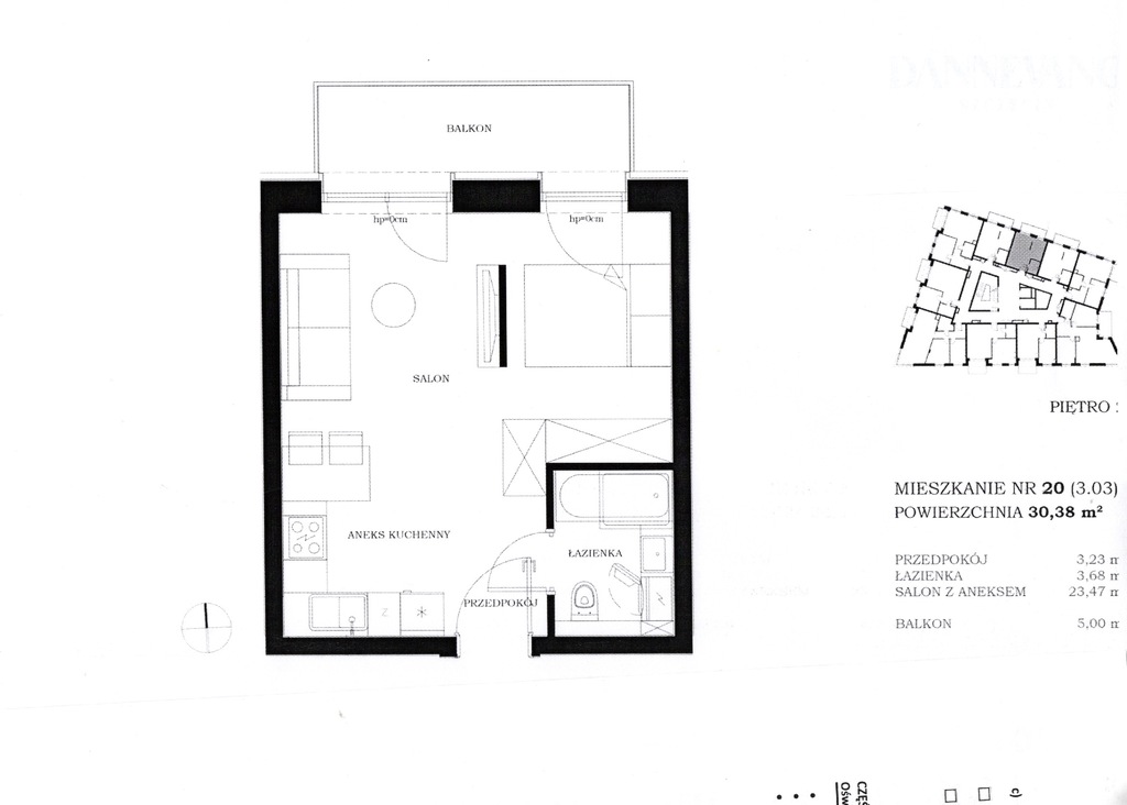
OPIS MIESZKANIA: mieszkanie 1 pokojowe o powierzchni 30,38 m2, z wyjściem na balkon o powierzchni 5 m2. Pokój z aneksem kuchennym o powierzchni 23,47 m2, łazienka 3,68 m2, przedpokój 3,23 m2. Balkon od strony północnej o powierzchni 5 m2. II piętro w V piętrowym budynku z windą. Wystawa okien północno - wschodnia.
W mieszkaniu klimatyzacja, sterowanie ogrzewaniem za pomocą aplikacji, komfortowe maty grzewcze w łazienkach, system kontaktronów w oknach wyłączających ogrzewanie, hotelowy wyłącznik światła, już nie ma konieczności sprawdzania każdego pomieszczenia, jednym ruchem wyłączają się wszystkie lampy w mieszkaniu. Ponadto system Kontaktronów w oknach wyłączających ogrzewanie w przypadku otwarcia okna, okna trójszybowe. Ogrzewanie i ciepła woda z Szczecińskiej Energetyki Cieplnej (SEC). W budynku nie ma gazu. Niski czynsz.
Przewidywany czas udostępnienia mieszkania grudzień 2025 roku.
Miejsce postojowe w garażu podziemnym w cenie 90.000 zł.
OPIS BUDYNKU: budynek wybudowany z bloczków silikatowych.
| Rodzaj oferty | Mieszkanie na sprzedaż | ||
|---|---|---|---|
| Liczba pokoi | 1 | ||
| Liczba łazienek | 1 | ||
| Liczba pięter | 5 | ||
| Powierzchnia | 30 m2 | ||
| Cena | 571 144 zł (18 800 zł/m2) | ||
| Forma prawna | Własność | ||
| Rodzaj budynku | Niski blok | ||
| Rok budowy | 2025 | ||
| Droga dojazdowa | Asfaltowa | ||
| Materiał | Silikat | ||
| Stan budynku | Idealny | ||
| Dodatkowo | winda     |