Dom na sprzedaż
| Lokalizacja | Szczecin Płonia | |
|---|---|---|
| Numer oferty | HOR21655 | |
| Rok budowy | 2024 | |
| Materiał | Cegła | |
| Liczba pokoi | 4 | |
| Powierzchnia | 130 m2 | |
| Działka | 520 m2 | |
| Cena | 950 000 zł |
Zaprojektowane osiedle to spokojne i urokliwe miejsce na Prawobrzeżu Szczecina, zaledwie 15 minut jazdy samochodem od centrum miasta. Bliskość centrum handlowego przy osiedlu Słonecznym, miasta Stargardu i węzła Kijewo sprawiają, że życie tutaj to nie tylko przyjemność, ale i wygoda. Spacer do rezerwatu przyrody Buczynowe Wąwozy zajmuje 10 minut, a jeszcze bliżej jest do lasku sosnowego, który znajduje się zaledwie 50 m od terenu inwestycji. W pobliżu mieści się też szkoła podstawowa, apteka, sklepy oraz szpital. Dobra infrastruktura, przemyślana zabudowa i spokojna okolica powodują, że Osiedle Trzy Rzeki to idealne miejsce do życia i rozwoju.
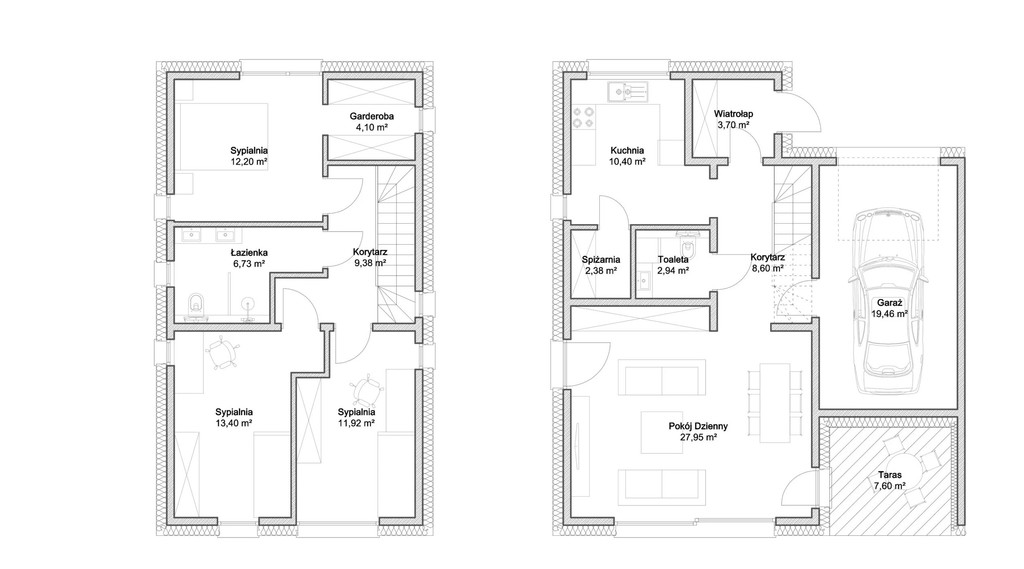
Domy w zabudowie bliźniaczej o powierzchni całkowitej 130m2 każdy jako parterowy z użytkowym poddaszem, z garażem w bryle budynku. Powierzchnia 113,7m2 + garaż 19,46. Działki po 520m2. Domy będą bardzo dobrze ustawione względem stron świata, wjazd od północy, ogrody od strony południowej.
Każdy dom został starannie zaprojektowany i wyposażony w nowoczesne technologie. Przestronne pomieszczenia z dużymi oknami gwarantują doskonałe nasłonecznienie, tworząc tym samym przyjazne i jasne wnętrza. Projekt domu uwzględnia salon z oddzielną kuchnią, dodatkowo 3 sypialnie, łazienkę i wc, garderobę, garaż jednostanowiskowy. Rzuty lokali do wglądu w biurze, wraz z prospektem informacyjnym o standardzie wykonania budynku i zagospodarowania terenu.
Zostały podpisane umowy na media ze ZWiK i Enea. Brak kanalizy, sugerowane przydomowe oczyszczalnie ścieków lub szambo ekologiczne. Gaz w drodze, natomiast projekt zakłada pompy ciepła.
Termin wydania to maj 2026r.
| Rodzaj oferty | Dom na sprzedaż | ||
|---|---|---|---|
| Liczba pokoi | 4 | ||
| Liczba łazienek | 1 | ||
| Liczba pięter | 1 | ||
| Powierzchnia | 130 m2 | ||
| Działka | 520 | ||
| Cena | 950 000 zł (7 307 zł/m2) | ||
| Forma prawna | Własność | ||
| Rok budowy | 2024 | ||
| Droga dojazdowa | Asfaltowa | ||
| Materiał | Cegła | ||
| Stan budynku | W budowie | ||
| Dodatkowo | kominek    ogród     |