POWIERZCHNIA (M²)

CENA ZA M²

PIĘTRO

LICZBA POKOI

ROK BUDOWY

RYNEK

NUMER OFERTY

Poprzednia oferta
Powrót
Następna oferta

Mieszkanie 2-pok. w nowej inwestycji nad Odrą!

Mieszkanie na sprzedaż

Lokalizacja Szczecin Łasztownia
Celna
Numer oferty 473/10212/O
Rodzaj budynku Budynek apartamentowy
Rok budowy 2027
Materiał Silikat
Liczba pokoi 2
Powierzchnia 35 m2
Cena 525 543 zł

Opis

Zamieszkaj nad Odrą – nowoczesność i natura w idealnej harmonii

Lokalizacja, która zachwyca:
To wyjątkowa inwestycja położona tuż przy brzegu Odry – idealne miejsce dla tych, którzy cenią spokój, piękne widoki i miejski styl życia. Z mieszkania rozpościera się boczny widok na rzekę, a w bezpośrednim sąsiedztwie znajdują się nowe, malownicze aleje spacerowe – idealne na poranny jogging, spacer z psem czy wieczorny relaks na świeżym powietrzu.

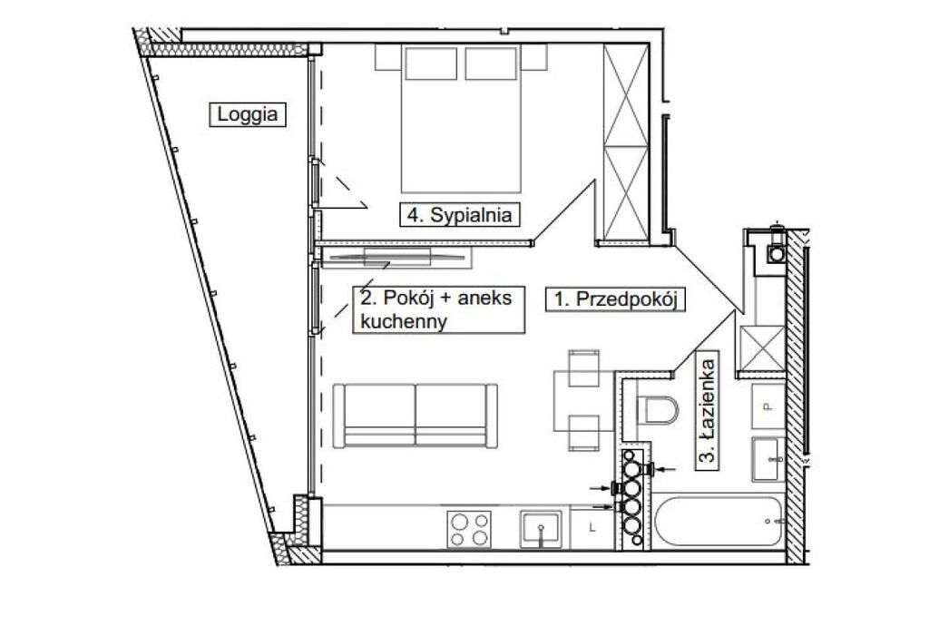
Układ mieszkania (8. piętro w 8-piętrowym budynku):

  • Pokój dzienny z aneksem kuchennym – 15,96 m²
  • Loggia - 6,64 m2
  • Sypialnia - 11,56 m2
  • Łazienka – 4,49 m²
  • Przedpokój – 3,64 m²

Dlaczego warto?
  • Nowoczesna, elegancka architektura – połączenie estetyki z funkcjonalnością
  • Kameralna okolica nad rzeką, z szybkim dojazdem do centrum miasta


Idealne dla:
Singla, pary lub inwestora szukającego atrakcyjnej nieruchomości pod wynajem.
 
Szukasz mieszkania o innych parametrach? Zadzwoń teraz!


Szczegóły
Rodzaj oferty Mieszkanie na sprzedaż
Liczba pokoi 2
Liczba łazienek 1
Liczba pięter 8
Powierzchnia 35 m2
Cena 525 543 zł (14 750 zł/m2)
Forma prawna Własność
Rodzaj budynku Budynek apartamentowy
Rok budowy 2027
Materiał Silikat
Rodzaj ogrzewania co miejskie
Komunikacja autobus, tramwaj
Dostępne w okolicy fitnes, rzeka, szkoła, przystań
Dodatkowo alarm    winda    monitoring