Mieszkanie na sprzedaż
| Lokalizacja |
Szczecin Centrum ul. Jacka Malczewskiego |
|
|---|---|---|
| Numer oferty | BON48187 | |
| Rodzaj budynku | Apartamentowo-handlowy | |
| Rok budowy | 2023 | |
| Materiał | Beton | |
| Liczba pokoi | 2 | |
| Powierzchnia | 31 m2 | |
| Cena | 460 000 zł |
Planujesz skredytować to marzenie – zadzwoń.
Ofertę sprzedaży stanowi lokal mieszkalny w stanie deweloperskim zlokalizowany w nowym budynku apartamentowym (plomba z 2023 roku) przy ul. Malczewskiego.
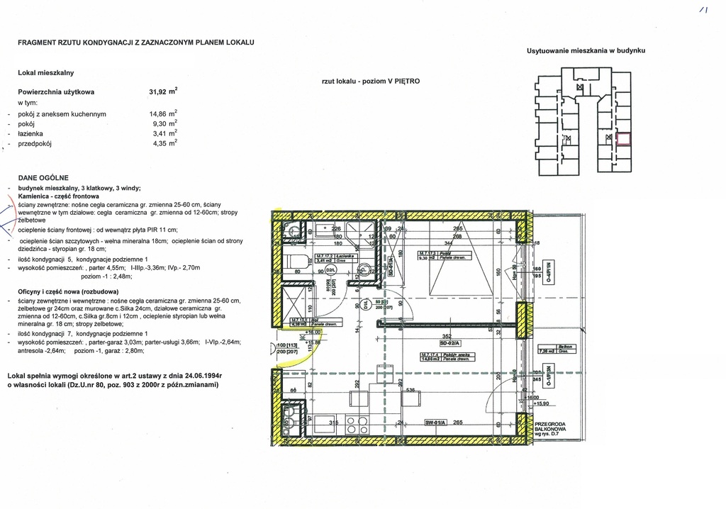
Studio ma powierzchnię 31,92 m2 i składa się z pokoju z aneksem kuchennym, sypialni 9,30 m2, łazienki 3,41 m2 oraz przedpokoju 4,35 m2. Standard aparatmentu - foto.
Budynek 8 kondygnacyjny z lokalami usługowymi w parterze , podziemna hala garażowa.
Super lokalizacja (budynek znajduje się w ścisłym centrum Szczecina, obok galerii handlowej), duży potencjał inwestycyjny-idealna oferta na wynajem, atrakcyjna cena sprzedaży to główne atuty oferowanej nieruchomości.
Przyjedź , zobacz, taka szansa może sie już nie powtórzyć. Zapraszamy na prezentację.
| Rodzaj oferty | Mieszkanie na sprzedaż | ||
|---|---|---|---|
| Liczba pokoi | 2 | ||
| Liczba łazienek | 1 | ||
| Liczba pięter | 7 | ||
| Powierzchnia | 31 m2 | ||
| Cena | 460 000 zł (14 411 zł/m2) | ||
| Forma prawna | Własność | ||
| Rodzaj budynku | Apartamentowo-handlowy | ||
| Rok budowy | 2023 | ||
| Materiał | Beton | ||
| Stan budynku | Idealny | ||
| Dodatkowo | internet    winda    monitoring     |