POWIERZCHNIA (M²)

CENA ZA M²

PIĘTRO

LICZBA POKOI

ROK BUDOWY

RYNEK

NUMER OFERTY

Poprzednia oferta
Powrót
Następna oferta

Kawalerka z tarasem

Mieszkanie na sprzedaż

Lokalizacja Szczecin Łasztownia
Numer oferty SWN32581
Rodzaj budynku Budynek apartamentowy
Rok budowy 2024
Materiał Mieszany
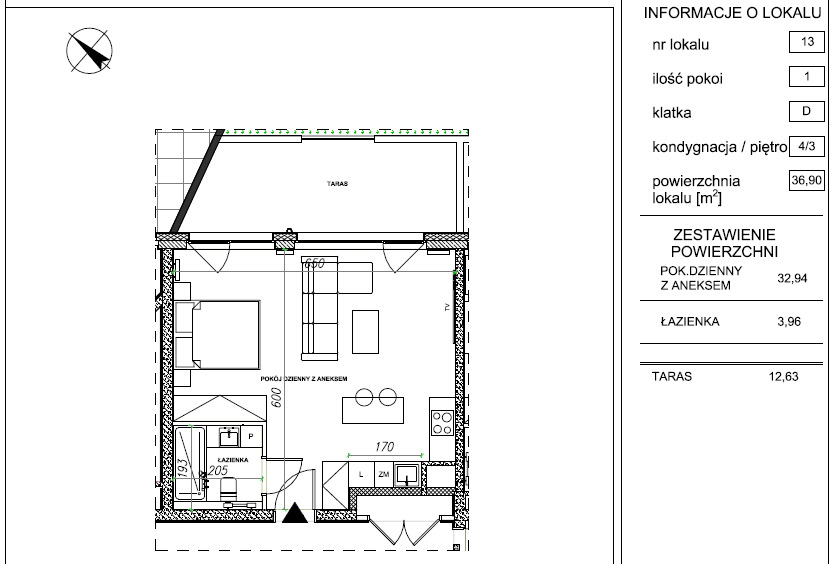
Liczba pokoi 2
Powierzchnia 36 m2
Cena 547 965 zł

Opis

Duża kawalerka  37 m2  z tarasem, w budynku o podwyższonym standardzie

 
W sprzedaży również inne rozkłady mieszkań :
·         1 pokojowe – 27-40 m2
·         2 pokojowe – 31 - 52 m2
·         3 pokojowe – 50 - 80 m2
·         4 pokojowe – 71 - 148 m2
 
Bardzo nowoczesne osiedle wykonane z wysokiej jakości materiałów, z terenem rekreacyjnym, Doskonałe miejsce do zamieszkania dla Wymagających Klientów ceniących sobie wygodę oraz luksus.
Inwestycja znajduje się przy ul. Celnej na Łasztowni, w miejscu tętniącym życiem!
Apartamentowce znajdują się w sercu miasta przy Bulwarach Szczecińskich, nad samym brzegiem rzeki Odry, oraz Kanału Zielonego - to również Idealna lokalizacja dla miłośników sportów wodnych.

Do nabycia również: miejsca postojowe w garażu, komórki lokatorskie i boksy na rowery.

W pierwszej kolejności powstanie, usytuowany najbliżej Kanału Zielonego, wielorodzinny budynek mieszkalny: 189 mieszkań i 23 lokale usługowe na parterze. W trzykondygnacyjnym garażu zaprojektowano miejsca na 218 samochodów. Budynek będzie miał łącznie 7 kondygnacji, ale w niektórych miejscach będzie obniżony do 5. lub 6.
W drugim etapie, nieco bliżej Mostu Długiego, powstanie budynek o wysokości od 5. do 7. kondygnacji, który również będzie miał charakter tarasowy, na poziomie 3 piętra będzie znajdował się zielony dziedziniec z placem zabaw dla dzieci. W budynku będzie 237 mieszkań, lokale usługowe, 269 miejsc parkingowych, 100 boksów na rowery i 49 komórek lokatorskich.
W trzecim etapie inwestycji, który obejmuje teren najbliżej Mostu Długiego, powstanie 336 mieszkań i 17 lokali usługowych w parterze. Zostały również zaprojektowane miejsca garażowe, oraz boksy. W kompleksie połączonych ze sobą budynków najwyższy będzie miał 9 kondygnacji. Zaplanowane zostały chodniki, place oraz ścieżki z kostki granitowej, identycznej jak położona w pasie nabrzeża. Dla urozmaicenia posadzki placu wprowadzono wzór z płyt betonowych oraz miejscowo – pasma świetlne ukryte w posadzce.

NAJWIĘKSZY ATUT INWESTYCJI NAD ODRĄ


Osoby ceniące miejski styl życia i bliskość natury oraz miłośnicy sportów wodnych poczują się jak u siebie. W pobliżu są liczne instytucje kultury, takie jak centrum sztuki współczesnej Trafostacja Sztuki, teatry, Muzeum Narodowe, Opera na Zamku oraz ulubione przez Szczecinian miejsca spotkań, gdzie można zjeść i odpocząć w towarzystwie znajomych – Hala Odra oraz Miejska Strefa Letnia na Wyspie Grodzkiej. W pobliżu są parki, zieleńce, skwery, lasy miejskie, rezerwaty



Szczegóły
Rodzaj oferty Mieszkanie na sprzedaż
Liczba pokoi 2
Liczba łazienek 1
Liczba pięter 7
Powierzchnia 36 m2
Cena 547 965 zł (14 850 zł/m2)
Rodzaj budynku Budynek apartamentowy
Rok budowy 2024
Materiał Mieszany
Rodzaj ogrzewania co miejskie
Komunikacja autobus, tramwaj
Dostępne w okolicy rzeka, plac zabaw, przystań
Dodatkowo winda