Mieszkanie na sprzedaż
| Lokalizacja | Szczecin Niebuszewo | |
|---|---|---|
| Numer oferty | IDN33705 | |
| Rodzaj budynku | Niski blok | |
| Rok budowy | 1990 | |
| Materiał | Cegła | |
| Liczba pokoi | 2 | |
| Powierzchnia | 47 m2 | |
| Cena | 480 000 zł |
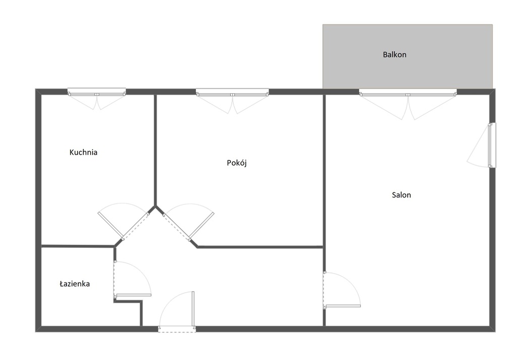
Przedmiotem sprzedaży są 2 pokoje położone na zamkniętym osiedlu na Niebuszewie. Lokal znajduje się na 2 piętrze dobrze utrzymanego, ocieplonego, niskiego bloku z cegły. Osiedle bezpieczne, ciche i spokojne, położone w otoczeniu zieleni. Świetna lokalizacja - w pobliżu liczne sklepy wielobranżowe, punkty usługowe, przystanki komunikacji miejskiej, supermarket, szkoły, przedszkola. Bardzo dobra komunikacja z centrum miasta.
Mieszkanie o powierzchni 47,50m2, w skład którego wchodzą:
-jasny, ustawny salon z wyjściem na balkon,
-sypialnia,
-oddzielna kuchnia z oknem,
-łazienka z wanną oraz toaletą,
-przedpokój.
Mieszkanie do remontu.
Wystawa okien na stronę południową. Wszystkie media z sieci miejskiej, dodatkowo płatny tylko gaz i prąd według zużycia. Opłaty czynszowe na poziomie ok. 620 zł miesięcznie.
Do mieszkania przynależy duża piwnica.
Polecam serdecznie za względu na fantastyczną lokalizację.
| Rodzaj oferty | Mieszkanie na sprzedaż | ||
|---|---|---|---|
| Liczba pokoi | 2 | ||
| Liczba łazienek | 1 | ||
| Liczba pięter | 4 | ||
| Powierzchnia | 47 m2 | ||
| Cena | 480 000 zł (10 105 zł/m2) | ||
| Forma prawna | Spółdzielcze własnościowe prawo | ||
| Rodzaj budynku | Niski blok | ||
| Rok budowy | 1990 | ||
| Materiał | Cegła | ||
| Rodzaj ogrzewania | co miejskie | ||
| Komunikacja | autobus, tramwaj | ||
| Dostępne w okolicy | przedszkole, szkoła, bank, centrum handlowe | ||
| Dodatkowo | ochrona    monitoring     |