Lokal usługowy na sprzedaż
| Lokalizacja |
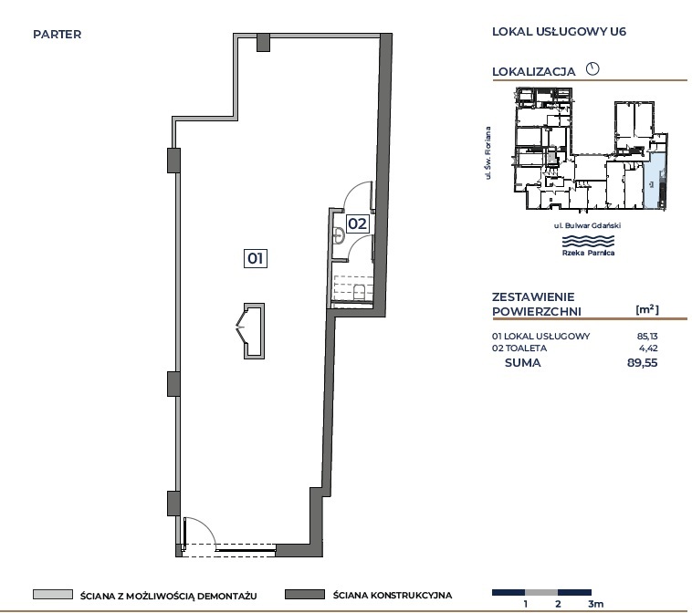
Szczecin Łasztownia Bulwar Gdański |
|
|---|---|---|
| Numer oferty | ELT34054 | |
| Rodzaj budynku | Budynek apartamentowy | |
| Rok budowy | 2025 | |
| Materiał | Silikat | |
| Liczba pokoi | 2 | |
| Powierzchnia | 89 m2 | |
| Cena | 895 500 zł |
Na sprzedaż lokal usługowy w stanie deweloperskim, zlokalizowane w nowoczesnym budynku w doskonałej lokalizacji – tuż przy rozwijającym się centrum Szczecina, w sąsiedztwie Łasztowni przy ul. Bulwary Gdańskie.
Najważniejsze informacje:
* Lokal o powierzchni 89,55
* Lokal przygotowany do własnej aranżacji
* Duże witryny zapewniające doskonałą ekspozycję i doświetlenie wnętrza
* Nowoczesny budynek z windą
* Parter z bezpośrednim wejściem z ulicy
* Ogrzewanie podłogowe z sieci miejskiej
Możliwość powiększenia lokalu - na sprzedaż dostępne są także sąsiednie lokale o różnym metrażu.
Dodatkowe atuty:
* Nowoczesna architektura budynku
* Stan deweloperski - pełna swoboda aranżacji
* Przygotowane przyłącza mediów
* Możliwość instalacji klimatyzacji
* Miejsca parkingowe w pobliżu bez strefy.
Lokalizacja:
* Zaledwie kilka minut spacerem od Łasztowni – nowoczesnej i dynamicznie rozwijającej się części miasta
* Dogodny dojazd do centrum oraz dostęp do komunikacji miejskiej
Idealny lokal pod działalność usługową, biurową lub handlową.
Zapraszam na prezentację.
Wyłączność.
| Rodzaj oferty | Lokal usługowy na sprzedaż | ||
|---|---|---|---|
| Liczba pokoi | 2 | ||
| Liczba pięter | 5 | ||
| Powierzchnia | 89 m2 | ||
| Cena | 895 500 zł (10 000 zł/m2) | ||
| Forma prawna | Własność | ||
| Forma prawna gruntu | Własność | ||
| Rodzaj budynku | Budynek apartamentowy | ||
| Rok budowy | 2025 | ||
| Materiał | Silikat | ||
| Stan budynku | Stan deweloperski | ||
| Rodzaj ogrzewania | co miejskie, podłogowe | ||
| Komunikacja | autobus, tramwaj | ||
| Dodatkowo | alarm     przystosowane dla niepełnosprawych    internet    telewizja kablowa    klimatyzacja    winda    monitoring     |