Mieszkanie na sprzedaż
| Lokalizacja |
Szczecin os. Gontyny ul. 1 Maja |
|
|---|---|---|
| Numer oferty | HAC22778 | |
| Rodzaj budynku | Wysoki blok | |
| Rok budowy | 1977 | |
| Materiał | Wielka Płyta | |
| Liczba pokoi | 2 | |
| Powierzchnia | 42 m2 | |
| Cena | 390 000 zł |
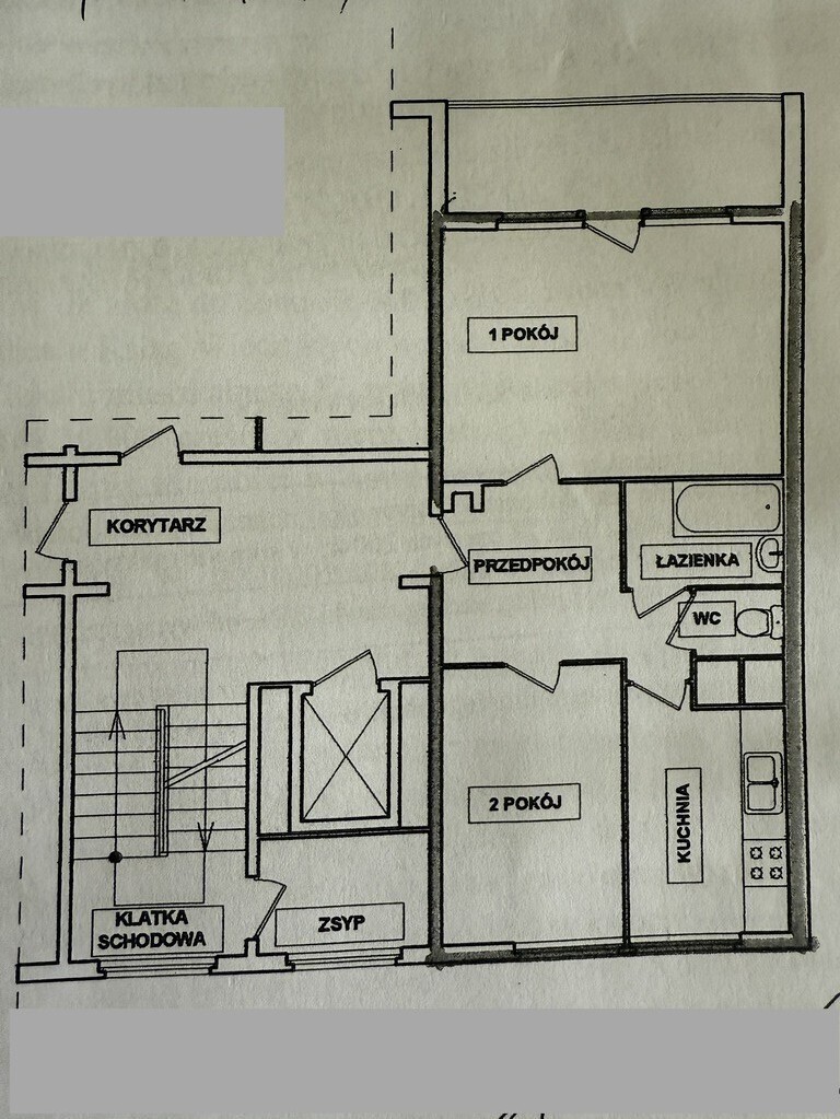
Rozkładowe mieszkanie 2 pokojowe położone na 3 piętrze ocieplonego bloku zlokalizowanego na zielonym, spokojnym osiedlu.
Na powierzchnię 42,42 m2 składają się:
* salon z wyjściem na przestronny balkon
* sypialnia
* kuchnia
* łazienka
* wc
* przedpokój
Wystawa okien: północ - południe.
W pokojach na ścianach położone są tapety, na podłogach panele.
W przedpokoju na podłodze panele, na ścianach tapeta.
Łazienka i wc (osobno) w glazurze i terakocie starszego typu.
Kuchnia widna, na podłodze terakota, na ścianach glazura.
Ogrzewanie mieszkania i ciepła woda z sieci miejskiej.
W mieszkaniu mogą zostać wszystkie meble widoczne na zdjęciach.
Miesięczne opłaty wynoszą około 500 zł.
Budynek z windą, wybudowany z wielkiej płyty w 1977 roku.
Przed budynkiem zamknięta strefa parkowania wyłącznie dla mieszkańców bloku oraz bezpłatna strefa parkowania przy ulicy.
Przy transakcji zakupu zapewniamy obsługę notarialną.
Oferta wyłącznie dla osób posiadających środki własne na zakup.
Zapraszam na prezentację.
Opis oferty sporządzany jest na podstawie oględzin nieruchomości oraz informacji uzyskanych od właściciela, może podlegać aktualizacji i nie stanowi oferty określonej w art. 66 i następnych K.C.
| Rodzaj oferty | Mieszkanie na sprzedaż | ||
|---|---|---|---|
| Liczba pokoi | 2 | ||
| Liczba pięter | 10 | ||
| Powierzchnia | 42 m2 | ||
| Cena | 390 000 zł (9 193 zł/m2) | ||
| Forma prawna | Własność | ||
| Rodzaj budynku | Wysoki blok | ||
| Rok budowy | 1977 | ||
| Droga dojazdowa | Asfaltowa | ||
| Materiał | Wielka Płyta | ||
| Stan budynku | Dobry | ||
| Dodatkowo | internet    telewizja kablowa    piwnica    winda     |