Wynajem lokalu usługowego
| Lokalizacja | Szczecin Śródmieście | |
|---|---|---|
| Numer oferty | SCN22998 | |
| Rodzaj budynku | Mieszkalno-biurowy | |
| Rok budowy | 1999 | |
| Materiał | Cegła | |
| Liczba pokoi | 5 | |
| Powierzchnia | 120 m2 | |
| Cena | 9 000 zł |
Do wynajęcia lokal położony w okolicy ronda Giedroyca i targowiska Manhattan.
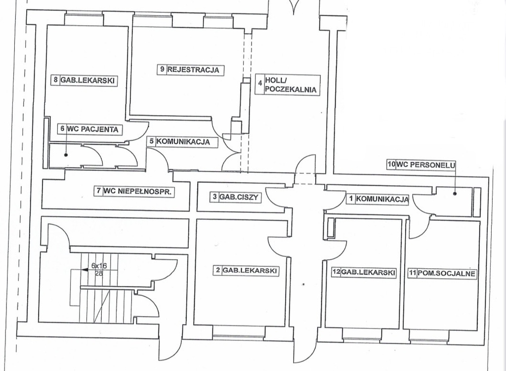
Lokal z wejściem bezpośrednio z ulicy o powierzchni 120,9m2, a w tym:
- hall,
- poczekalnia,
-5 pomieszczeń,
- 2 osobne WC,
- 2 pomieszczenia socjalne.
Lokal pełnił dotychczasowo funkcje medyczną (pozostało umeblowanie i wszelkie udogodnienia).
Wysokość lokalu: 3,03 m2.
Lokal klimatyzowany, z pełnymi zabezpieczeniami: alarm, rolety, monitoring.
Dostęp do lokalu z poziomu uchroniony szlabanem i furtką- 24h.
Istnieją 2 wejścia do lokalu.
Parking wewnętrzny w podwórku- 2 dostępne miejsca parkingowe za dodatkową opłatą do Zarządcy.
W budynku inne lokale usługowe.
Czysz najmu: 9 000 zł + czynsz do SM+prąd.
Media miejskie.
Idealna propozycja dla kontynuacji działalności medycznej: gabinetów lekarskich czy medycyny estetycznej. Doskonale sprawdzi się także jako biuro czy szkoła językowa.
Brak strefy płatnego parkowania. Miejsca ogólnodostępne na ulicy.
Dobry dostęp do komunikacji miejskiej: autobusy i tramwaje.
Polecam.
Klucze w biurze.
| Rodzaj oferty | Wynajem lokalu usługowego | ||
|---|---|---|---|
| Liczba pokoi | 5 | ||
| Liczba pięter | 4 | ||
| Powierzchnia | 120 m2 | ||
| Cena | 9 000 zł (74 zł/m2) | ||
| Forma prawna | Własność | ||
| Rodzaj budynku | Mieszkalno-biurowy | ||
| Rok budowy | 1999 | ||
| Materiał | Cegła | ||
| Stan budynku | Bardzo dobry | ||
| Rodzaj ogrzewania | co miejskie | ||
| Komunikacja | autobus, tramwaj | ||
| Dodatkowo | alarm     przystosowane dla niepełnosprawych    internet    klimatyzacja    recepcja    ochrona    monitoring     |