Dom na sprzedaż
| Lokalizacja | Szczecin Kijewo | |
|---|---|---|
| Numer oferty | MAP23001 | |
| Rok budowy | 2025 | |
| Materiał | Cegła | |
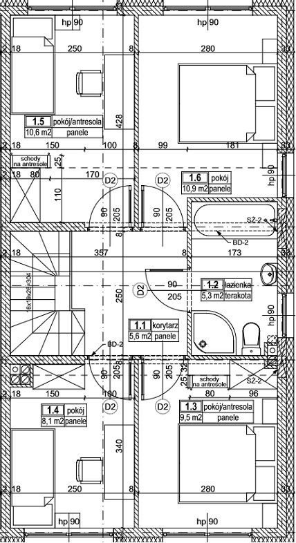
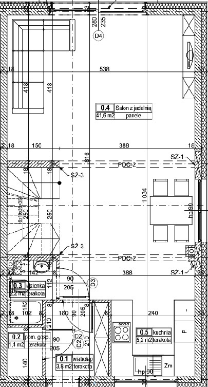
| Liczba pokoi | 5 | |
| Powierzchnia | 120 m2 | |
| Działka | 284 m2 | |
| Cena | 1 040 000 zł |
Serdecznie zapraszamy do zapoznania się z naszą najnowszą wyłącznością.
Na sprzedaż inwestycja zlokalizowana w prawobrzeżnej części Szczecina - Kijewie - składająca się z dwóch budynków dwulokalowych. Jedna część została już zarezerwowana, do zakupu pozostały 3 lokale - jeden skrajny i dwa wewnętrzne.
Łączna powierzchnia działki wynosi 1139m2 - na każdy lokal przypada udział po 285m2 - w tym same ogródki po ok.100-120m2.
| Rodzaj oferty | Dom na sprzedaż | ||
|---|---|---|---|
| Liczba pokoi | 5 | ||
| Liczba pięter | 1 | ||
| Powierzchnia | 120 m2 | ||
| Działka | 284 | ||
| Cena | 1 040 000 zł (8 666 zł/m2) | ||
| Forma prawna | Własność | ||
| Forma prawna gruntu | Własność | ||
| Rok budowy | 2025 | ||
| Droga dojazdowa | Asfaltowa | ||
| Materiał | Cegła | ||
| Stan budynku | Idealny | ||
| Dodatkowo | internet    telewizja kablowa    ogród     |