Mieszkanie na sprzedaż
| Lokalizacja |
Szczecin Pogodno ul. Romualda Traugutta |
|
|---|---|---|
| Numer oferty | ROY04096 | |
| Rodzaj budynku | Część domu | |
| Rok budowy | 1990 | |
| Materiał | Cegła | |
| Liczba pokoi | 4 | |
| Powierzchnia | 155 m2 | |
| Cena | 1 299 000 zł |
Zapraszamy do zapoznania się z wyjątkową ofertą nowoczesnego i komfortowego mieszkania o powierzchni 155,30 m2, położonego w atrakcyjnej lokalizacji w dzielnicy Pogodno na ulicy Romualda Traugutta.
Najważniejsze atuty:
• Doskonała lokalizacja: To miejsce to nie tylko mieszkanie, ale prawdziwe źródło przyjemności i spokoju, gdzie funkcjonalność spotyka się z elegancją, a każdy kąt jest stworzony z myślą o wyjątkowym życiu.
• Wysoki standard wykończenia: Mieszkanie zostało urządzone z dbałością o najmniejsze detale, wykorzystując nowoczesne rozwiązania i materiały najwyższej jakości. To miejsce, które spełni oczekiwania nawet najbardziej wymagających klientów.
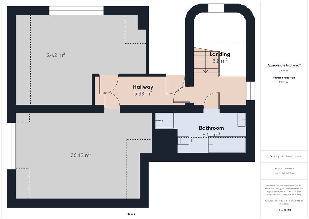
• Funkcjonalny układ pomieszczeń: Mieszkanie składa się z przestronnego salonu z aneksem kuchennym, trzech sypialni, garderoby, pralni, łazienki z prysznicem oraz wanną, osobną toaletą. Każde pomieszczenie zostało starannie zaprojektowane, aby zapewnić maksymalny komfort mieszkania.
• Dodatkowe udogodnienia: Do nieruchomości przynależy ogródek o powierzchni 322m2
Mieszkanie składa się:
klatka schodowa
salon z aneksem kuchennym
sypialnia z garderobą,
garderoba z oknem
toaleta
przedpokój
pom. gospodarcze (miejsce na piec gazowy itp.)
dodatkowe dwie sypialnie
łazienka
Mieszkanie jest urządzone i gotowe do zamieszkania!
Zapraszamy do kontaktu w celu uzyskania dodatkowych informacji oraz umówienia się na prezentację.
| Rodzaj oferty | Mieszkanie na sprzedaż | ||
|---|---|---|---|
| Liczba pokoi | 4 | ||
| Liczba łazienek | 1 | ||
| Liczba pięter | 2 | ||
| Powierzchnia | 155 m2 | ||
| Cena | 1 299 000 zł (8 364 zł/m2) | ||
| Forma prawna | Własność | ||
| Rodzaj budynku | Część domu | ||
| Rok budowy | 1990 | ||
| Droga dojazdowa | Asfaltowa | ||
| Materiał | Cegła | ||
| Stan budynku | Bardzo dobry | ||
| Rodzaj ogrzewania | gazowe | ||
| Dostępne w okolicy | szkoła, przedszkole, kościół, apteka, bazarek, fitnes, bank, centrum handlowe | ||
| Dodatkowo | internet    telewizja kablowa    ogród     |