Dom na sprzedaż
| Lokalizacja | Rogowo | |
|---|---|---|
| Numer oferty | ROY04091 | |
| Rok budowy | 2025 | |
| Materiał | Gazobeton | |
| Liczba pokoi | 4 | |
| Powierzchnia | 71 m2 | |
| Działka | 500 m2 | |
| Cena | 498 000 zł |
Okazja ! Na sprzedaż dom w zabudowie bliźniaczej położony w Rogowie, zaledwie 10 km od Stargardu, w bardzo atrakcyjnej, cichej i spokojnej okolicy.
Lokalizacja:
Nieruchomość położona w Rogowie zaledwie 10 km od Stargardu, 5 km od Grzędzic w bardzo spokojnej i zielonej okolicy.
Parametry nieruchomości:
- Powierzchnia całkowita: 71,44 m2
- Powierzchnia użytkowa: 68,24 m2
- Powierzchnia działki: 500 2
- Liczba pokoi: 4
- Typ domu: bliźniak
- Rok budowy 2025
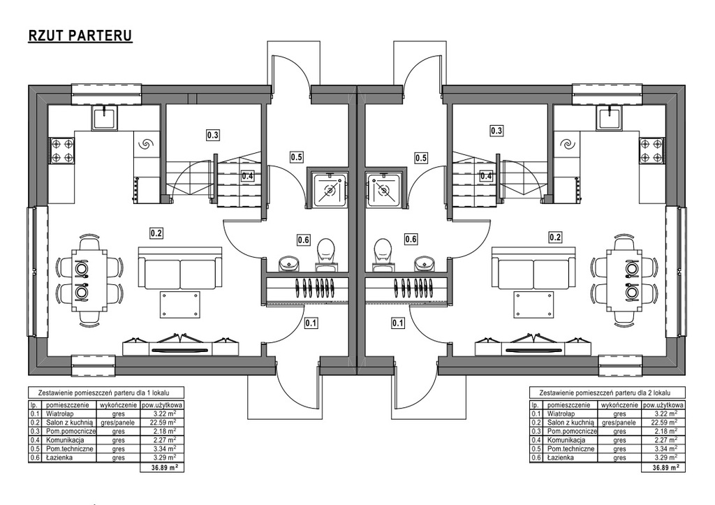
Rozkład pomieszczeń:
Parter:
- Jasny salon z aneksem kuchennym ( 22,59 m2 )
- Łazienka ( 3,29 m2 )
- Wiatrołap ( 3,22 m2 )
- Kotłownia ( 3,34 m2 )
- Pomieszczenie gospodarcze ( 2,18 m2 )
Piętro:
- 3 sypialnie ( 8,12 m2, 8,32 m2, 7,99 m2 )
- Łazienka ( 5,70 m2 )
- Komunikacja ( 4,41 m2 )
Dom oddawany w stanie deweloperskim. Standard wykonania:
- Ściany: gazobeton o grubości 24 cm
- Ocieplenie: styropian grafitowy 20 cm
- Ocieplenie posadzki: styropian 13 cm
- Zewnętrzne ściany: tynk silikatowo-silikonowy
- Ogrzewanie podłogowe w całym domu
- Pompa ciepła firmy YORK o mocy 6 kW
- Szambo szczelne o powierzchni 10 m3
- Woda z własnego ujęcia ( po wszystkich badaniach z zamontowanym zmiękczaczem wody)
- Dojście do drzwi wejściowych, 2 miejsca postojowe wykonane z kostki betonowej
- Działka ogrodzona z 3 stron bez frontu
Istnieje możliwość wykończenia domu pod klucz. Cena wykończonego domu 648 000 zł.
Nie czekaj dłużej z decyzją. Wszystko czego potrzebujesz, znajduje się w tym wyjątkowym domu, który na Ciebie czeka.
Zapraszam do kontaktu oraz na prezentację.
| Rodzaj oferty | Dom na sprzedaż | ||
|---|---|---|---|
| Liczba pokoi | 4 | ||
| Liczba łazienek | 2 | ||
| Liczba pięter | 1 | ||
| Powierzchnia | 71 m2 | ||
| Działka | 500 | ||
| Cena | 498 000 zł (6 970 zł/m2) | ||
| Forma prawna | Własność | ||
| Rok budowy | 2025 | ||
| Droga dojazdowa | Utwardzona | ||
| Materiał | Gazobeton | ||
| Stan budynku | Stan deweloperski | ||
| Rodzaj ogrzewania | pompa ciepła | ||
| Dodatkowo | ogród     |