POWIERZCHNIA (M²)

CENA ZA M²

PIĘTRO

LICZBA POKOI

ROK BUDOWY

RYNEK

NUMER OFERTY

Poprzednia oferta
Powrót
Następna oferta

3 pok | Śródmieście | duży potencjał inwestycyjny

Mieszkanie na sprzedaż

Lokalizacja Szczecin Śródmieście-Centrum
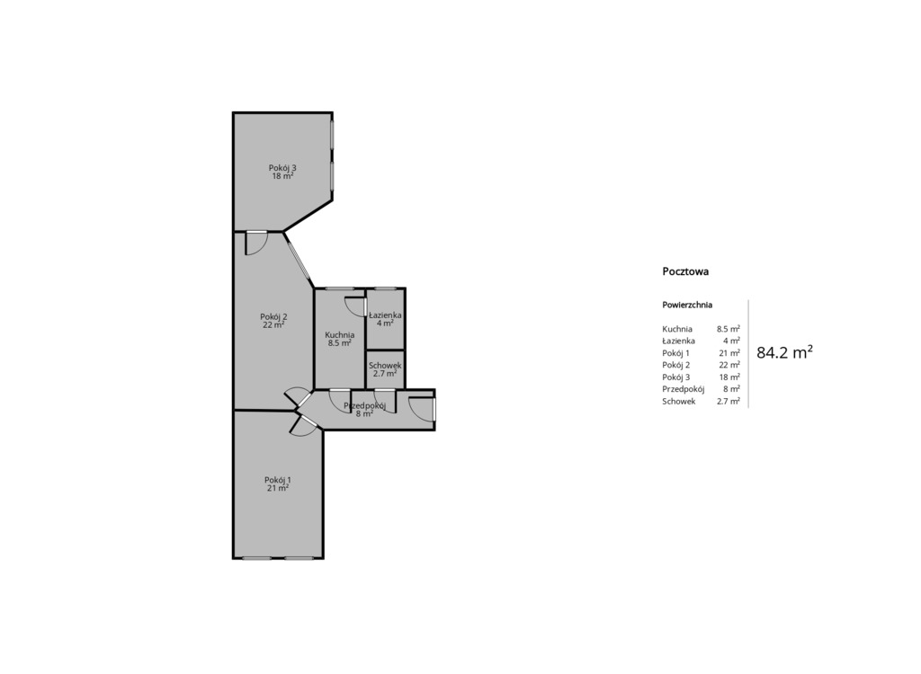
Pocztowa
Numer oferty 86/13324/OM
Rodzaj budynku Kamienica
Rok budowy 1920
Materiał Cegła
Liczba pokoi 3
Powierzchnia 84 m2
Cena 449 000 zł

Opis

OFERTA NA WYŁĄCZNOŚĆ – KLUCZE W BIURZE - TAKŻE NA KREDYT
 
Idealne na działalność biurową lub dla rodziny
 
Szukasz mieszkania w świetnej lokalizacji, które możesz zaaranżować według własnych potrzeb? A może chcesz otworzyć biuro lub kancelarię?
 
Mamy dla Ciebie ciekawą ofertę sprzedaży 84-metrowego mieszkania do remontu na parterze odnowionej kamienicy.
 
Zapewniamy wysoki rabat na wszelkie materiały budowlane i wykończeniowe!

Mieszkanie:
* powierzchnia 84,24 mkw.
* wysokość 3,20 m
* W przedpokoju znajdują się wejścia do kuchni (z której przechodzi się do łazienki) oraz do dwóch pokojów. Jeden z nich jest pokojem przechodnim z którego wchodzimy do trzeciego pokoju. Obecnie w przedpokoju znajduje się również wejście do skrytki - pomieszczenia, które mogłoby być zaaranżowane na spiżarnię, schowek na rowery lub - w przypadku kancelarii lub biura – pomieszczenie na dokumenty. Możliwość przywrócenia tradycyjnego układu pomieszczeń.
* parter w 4-piętrowej kamienicy
* ogrzewanie i ciepła woda z pieca gazowego
* okna drewniane w bardzo dobrym stanie, wychodzące na ulicę (jeden pokój) oraz na podwórze (pozostałe pomieszczenia)
 
 
Budynek:
* kamienica z wyremontowaną fasadą
* czysta i zadbana klatka schodowa
* ciche i zadbane podwórko wewnętrzne
 
Okolica:
* Śródmieście – dobra komunikacja w każdą stronę miasta
* w okolicy znajdziemy liczne sklepy (Biedronka 450m, Netto 850m, CH Turzyn 600m), punkty usługowe i gastronomiczne, szkoły podstawowe, przedszkola, szkoły ponadpodstawowe, przychodnię, fitness, pocztę, apteki, banki itp. W pobliżu przystanki linii tramwajowych 2, 4, 5, 7, 8, 9 oraz autobusowych 70, 86, 87, 75. W Śródmieściu siedzibę ma wiele wydziałów ZUT-u oraz Uniwersytetu Szczecińskiego. Ogólnodostępne miejsca parkingowe na ulicy (Strefa B).
 
Ważne:
* pełna własność z Księgą Wieczystą bez jakichkolwiek wpisów
* czynsz około 580 zł/ mies., woda rozliczana 2 razy w roku (przy zużyciu 30 m3 wody dopłata około 400 zł)
* możliwość łatwej aranżacji pomieszczeń na działalność biurową, także z wejściem z ulicy


Szczegóły
Rodzaj oferty Mieszkanie na sprzedaż
Liczba pokoi 3
Liczba łazienek 1
Liczba pięter 4
Powierzchnia 84 m2
Cena 449 000 zł (5 330 zł/m2)
Forma prawna Własność
Rodzaj budynku Kamienica
Rok budowy 1920
Materiał Cegła
Rodzaj ogrzewania gazowe
Komunikacja tramwaj, autobus
Dostępne w okolicy sklep, uczelnia, Żłobek, gimnazjum, bar, apteka, kościół, przychodnia lekarska, bank, fitnes, przedszkole, restauracja, szkoła, zabudowa niska, plac zabaw, centrum handlowe