Wynajem lokalu usługowego
| Lokalizacja | Szczecin Śródmieście-Centrum | |
|---|---|---|
| Numer oferty | ASP21702 | |
| Rodzaj budynku | Biurowo-handlowy | |
| Rok budowy | 1930 | |
| Materiał | Cegła | |
| Powierzchnia | 287 m2 | |
| Cena | 8 610 zł |
Powierzchnia 271 m2 położona na parterze budynku biurowo-usługowego, która może być wykorzystywana zarówno na biuro, magazyn jak i cichą produkcję lub w innym dowolnym celu. Lokalizacja na obrzeżach Centrum.
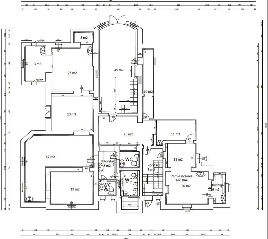
Oferowana powierzchnia składa się z 10 pomieszczeń, z których 6 posiada okna.
Do lokalu prowadzą 4 wejścia: dwa z głównych wejścia do budynku poprzez klatkę schodową oraz hol, oraz dwa bezpośrednio z zewnątrz. Jedno z wejść stanowią szerokie drzwi, poprzez które można dostarczać towary na paletach z poziomu „0”.
Możliwy jest wynajem mniejszej powierzchni, zgodnie z możliwościami podziału.
Na terenie nieruchomości kilka miejsc postojowych do wyłącznego korzystania przez najemcę oraz miejsca postojowe dostępne dla wszystkich najemców budynku. Ponadto na ulicy przed budynkiem znajdują się liczne ogólnodostępne miejsca parkingowe (SPP).
Powierzchnia świeżo po remoncie, zainstalowano wentylację mechaniczną oraz ogrzewanie podłogowe. Wymieniona instalacja elektryczna, ściany gładzone malowane, na podłogach niepyląca przemysłowa posadzka PCV, stolarka okienna i drzwiowa nowa. Na sufitach oświetlenie rastrowe.
Pomieszczenia o powierzchniach: 47, 45, 41, 25, 20 m2, pomieszczenie socjalne z aneksem kuchennym i stołówką 37 m2, magazynek 10 m2 oraz 3 łazienki: damska, męska i dla niepełnosprawnych ( w nowej glazurze i terakocie ) oraz korytarz. Wysokość pomieszczeń 2,80 m.
Koszt wynajmu wynosi 30 PLN netto/1 m2 (zawiera opłaty za wodę, śmieci, sprzątanie części wspólnych). Ogrzewanie indywidualne całego budynku (piec gazowy) rozliczane proporcjonalnie do zajmowanej powierzchni – ok. 850 zł w sezonie grzewczym). W poszczególnych pomieszczeniach ogrzewanie strefowe z manipulatorami. Rozprowadzona instalacja alarmowa i czujniki dymu.
Wymagana kaucja w wysokości jednomiesięcznego czynszu najmu brutto.
Doskonała lokalizacja, rozpoznawalne miejsce, szybki dojazd do ścisłego Centrum. Sąsiedztwo przystanków komunikacji miejskiej.
| Rodzaj oferty | Wynajem lokalu usługowego | ||
|---|---|---|---|
| Liczba łazienek | 3 | ||
| Liczba pięter | 2 | ||
| Powierzchnia | 287 m2 | ||
| Cena | 8 610 zł (30 zł/m2) | ||
| Forma prawna | Własność | ||
| Rodzaj budynku | Biurowo-handlowy | ||
| Rok budowy | 1930 | ||
| Materiał | Cegła | ||
| Stan budynku | Dobry | ||
| Komunikacja | autobus, tramwaj | ||
| Dodatkowo | przystosowane dla niepełnosprawych     |