Mieszkanie na sprzedaż
| Lokalizacja |
Szczecin os. Arkońskie ul. Wiosny Ludów |
|
|---|---|---|
| Numer oferty | INS21966 | |
| Rodzaj budynku | Niski blok | |
| Rok budowy | 1989 | |
| Materiał | Wielka Płyta | |
| Liczba pokoi | 2 | |
| Powierzchnia | 54 m2 | |
| Cena | 439 000 zł |
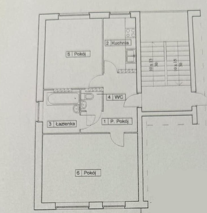
Na sprzedaż dwu pokojowe rozkładowe mieszkanie o pow. ok. 54,2 m2 położone na pierwszym piętrze niskiego bloku z lat 80tych. Szczecin spokojne i zielone os. Arkońskie.
Możliwość zakupu przez obywateli spoza UE - spółdzielcze własnościowe prawo.
Rozkład mieszkania:
przedpokój, łazienka, toaleta, kuchnia, sypialnia oraz pokój dzienny
Na podłogach w pokojach panele. W łazience glazura i terakota.
Ogrzewanie i woda z sieci miejskiej - czynsz na 2 os. ok. 800zł.
Okna PCV, kuchnia wyposażona, meble kuchenne, kuchenka, okap, zmywarka, lodówka.
W okolicy miejsca postojowe, sklepy dyskontowe, kościół, tereny zielone. Polecamy ze względu na lokalizację, rozkład mieszkania. Tylko u nas, zapraszamy na prezentację.
| Rodzaj oferty | Mieszkanie na sprzedaż | ||
|---|---|---|---|
| Liczba pokoi | 2 | ||
| Liczba łazienek | 1 | ||
| Liczba pięter | 4 | ||
| Powierzchnia | 54 m2 | ||
| Cena | 439 000 zł (8 099 zł/m2) | ||
| Forma prawna | Spółdzielcze własnościowe prawo | ||
| Rodzaj budynku | Niski blok | ||
| Rok budowy | 1989 | ||
| Droga dojazdowa | Asfaltowa | ||
| Materiał | Wielka Płyta | ||
| Stan budynku | Dobry | ||
| Rodzaj ogrzewania | co miejskie | ||
| Dostępne w okolicy | kościół, sklep, las, szkoła, apteka, przedszkole, plac zabaw | ||
| Dodatkowo | internet    telewizja kablowa    piwnica     |