Mieszkanie na sprzedaż
| Lokalizacja |
Szczecin Łasztownia Celna |
|
|---|---|---|
| Numer oferty | 388/11683/O | |
| Rodzaj budynku | Apartamentowo-handlowy | |
| Rok budowy | 2025 | |
| Materiał | Inny | |
| Liczba pokoi | 2 | |
| Powierzchnia | 45 m2 | |
| Cena | 651 079 zł |
Oferta bezpośrednia - Kupujący nie płaci prowizji! - Zwolnienie z 2% podatku PCC - Możliwość obejrzenia inwestycji na żywo!
Inwestycja "Nad Odrą " to wymarzone miejsce dla osób, które pragną mieszkać w Szczecinie tuż przy rzece, w jednej z najbardziej atrakcyjnych dzielnic ze względu na położenie tuż przy bulwarach z własną mariną.
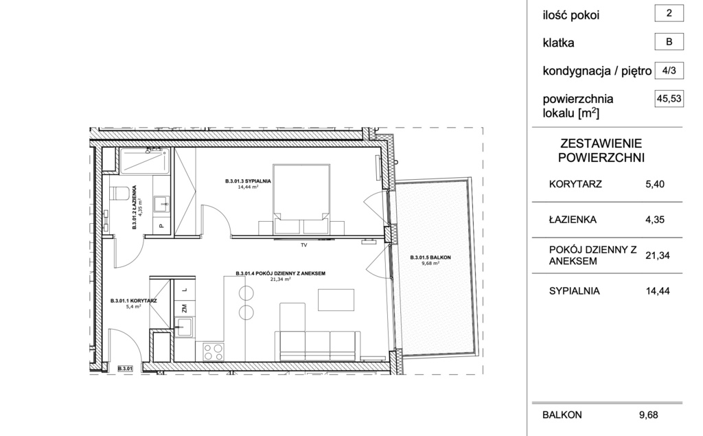
Oferowane mieszkanie ma pow. 45,53 m2 i składa się z :
- salonu z aneksem kuchennym - 21,34 m2
- sypialni - 14,44 m2
- łazienki z wc - 4,35 m2
- korytarza - 5,40 m2
dodatkowo balkon - 9,68 m2
Bliskość natury i liczne instytucje kultury sprawiają, że każdy znajdzie coś dla siebie.
W pobliżu są liczne instytucje kultury, takie jak centrum sztuki współczesnej, teatry, Muzeum Narodowe, Opera na Zamku oraz Szczecińskie Bulwary i Wyspa Grodzka
W sprzedaży rozkłady mieszkań :
· 1 pokojowe – 27-40 m2
· 2 pokojowe – 31 - 52 m2
· 3 pokojowe – 50 - 80 m2
· 4 pokojowe – 71 - 148 m2
oraz liczne lokale usługowe z dużymi witynami
To idealne miejsce zarówno na inwestycję (najem krótkoterminowy - turystyczny) jak i na własne cele prywatne.
Dodatkowo istnieje możliwość zakupienia miejsca postojowego w hali garażowej w cenie 69.900 zł brutto oraz komórek lokatorskich
Apartamentowce znajdują się w sercu miasta przy Bulwarach Szczecińskich, nad samym brzegiem rzeki Odry, oraz Kanału Zielonego - to również Idealna lokalizacja dla miłośników sportów wodnych.
Zalety lokalizacji :
- Nieopodal 8lini tramwajowych + autobusowe
- 700m do DWORCA GŁOWNEGO
- Idealny dojazd do lotniska
- Usługi w lokalach usługowych na parterze
- Obok Bulwarów Szczecińskich
- 4min do Deptaku Bogusława
- Dla Studentów -> 2.3km do US, ZUT, PUM
- W promilu kilometra szkoły, żłobki itp. Itd.
Zalety inwestycji :
- Nowoczesne osiedle o wysokim standardzie, przestronne mieszkania z balkonami, tarasami lub ogródkami
- Eleganckie, estetyczne i komfortowe części wspólne w budynkach
- Zielone dachy budynków doskonale filtrują zanieczyszczenia z powietrza, są nieocenionym źródłem tlenu
- Panoramiczne przeszklenia, mieszkania z wysokością nawet do 276 cm
- W budynku specjalne rowerownie do przechowywania rowerów dla mieszkańców
- Całość zagospodarowania dostępna bez barier dla osób starszych i z niepełnosprawnościami
- Chodniki, place oraz ścieżki z kostki granitowej, identycznej jak położona w pasie nabrzeża, pasma świetlne ukryte w posadzce
- Duża liczba miejsc parkingowych w halach garażowych
Zapraszamy do kontatku
| Rodzaj oferty | Mieszkanie na sprzedaż | ||
|---|---|---|---|
| Liczba pokoi | 2 | ||
| Liczba łazienek | 1 | ||
| Liczba pięter | 4 | ||
| Powierzchnia | 45 m2 | ||
| Cena | 651 079 zł (14 300 zł/m2) | ||
| Forma prawna | Własność | ||
| Forma prawna gruntu | Własność | ||
| Rodzaj budynku | Apartamentowo-handlowy | ||
| Rok budowy | 2025 | ||
| Materiał | Inny | ||
| Rodzaj ogrzewania | co miejskie | ||
| Dostępne w okolicy | szkoła, fitnes, bank, restauracja, rzeka, plac zabaw, hala sportowa, kościół, bar, przystań, apteka, sklep, przychodnia lekarska | ||
| Dodatkowo | winda     |