POWIERZCHNIA (M²)

CENA ZA M²

PIĘTRO

LICZBA POKOI

ROK BUDOWY

RYNEK

NUMER OFERTY

Poprzednia oferta
Powrót
Następna oferta

Wyjątkowy wolnostojący dom na dużej działce

Dom na sprzedaż

Lokalizacja Drezdenko
Numer oferty IDN33627
Rok budowy 2021
Materiał Inny
Liczba pokoi 5
Powierzchnia 140 m2
Działka 1101 m2
Cena 1 350 000 zł

Opis

Zapraszam do zapoznania się z ofertą sprzedaży wyjątkowego domu wolnostojącego położonego w odległości 2km od centrum Drezdenka. 

Dom został wybudowany w 2021r, na płaskiej działce, graniczącej z lasem o powierzchni 1101m2. Zabudowania domów wolnostojących tworząca urokliwe osiedle. 

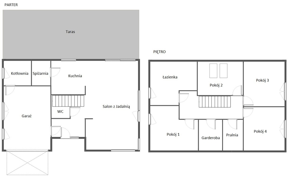
Na parterze znajdziemy przestronny salon z jadalnią o powierzchni ponad 32m2 z którego mamy bezpośrednie wyjścia, oknami z HDS, na taras o powierzchni ponad 50m2.           
Na tym poziomie znajduje się otwarta, wycofana kuchnia w zabudowie, z dębowymi blatami i sprzętami AGD wraz z spiżarką o łącznej powierzchni powierzchni 12m2.  
Dodatkowo przestronny wiatrołap z bezpośrednim wejściem do garażu oraz  WC ze schowkiem. 

Na piętro prowadzą drewniane schody. Z przestronnego korytarza mamy wejście do:
-  4 pokoi ( 10,11,10,6 m2)  
- łazienki z wolnostojącą wanną i "4" osobową kabiną walk in , 2 umywalkami w pięknej zabudowie 
- pralnia z suszarnią  3m2   
- garderoba 4m2 

Dom wyjątkowy w swojej architekturze i projekcie wszystkich wnętrz który posiada liczne udogodnienia między innymi takie jak: 
- ogrzewanie podłogowe    
- rekuperacja
- klimatyzacja 
- odkurzacz centralny 
- we wszystkich pokojach żaluzje ( nie rolety zewnętrzne) sterowanie elektronicznie 
- monitoring
- alarm   
- ogrodzenie metalowe bez spoinowe indywidualnego projekt  
- automatyczne sterowanie podlewaniem 
- w kuchni sprzęty najwyższej jakości między innymi expres do kawy w zabudowie oraz płyta indukcyjna z wbudowanym pochłaniaczem    
i szereg innych udogodnień 

Dom z efektem WOW na pięknej działce. 


Szczegóły
Rodzaj oferty Dom na sprzedaż
Liczba pokoi 5
Liczba łazienek 1
Liczba pięter 1
Powierzchnia 140 m2
Działka 1101
Cena 1 350 000 zł (9 611 zł/m2)
Forma prawna Własność
Rok budowy 2021
Droga dojazdowa Utwardzona
Materiał Inny
Stan budynku Idealny
Rodzaj ogrzewania gazowe, podłogowe
Komunikacja
Dostępne w okolicy zabudowa niska, jezioro, rzeka, las
Dodatkowo alarm    monitoring