POWIERZCHNIA (M²)

CENA ZA M²

PIĘTRO

LICZBA POKOI

ROK BUDOWY

RYNEK

NUMER OFERTY

Poprzednia oferta
Powrót
Następna oferta

Mieszkanie na sprzedaż w Mierzynie, s.deweloperski

Mieszkanie na sprzedaż

Lokalizacja Mierzyn
Numer oferty HES28627
Rodzaj budynku Niski blok
Rok budowy 2025
Materiał Silikat
Liczba pokoi 3
Powierzchnia 67 m2
Cena 665 181 zł

Opis

Przedstawiamy do sprzedaży atrakcyjne mieszkanie w stanie deweloperskim, usytuowane w niskim budynku z windą, w malowniczej lokalizacji Mierzyna. Nieruchomość idealna dla osób ceniących komfort oraz nowoczesne rozwiązania.

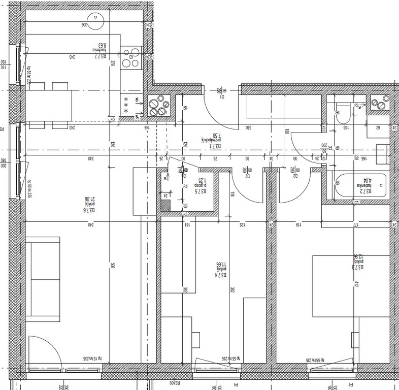
Powierzchnia mieszkania obejmuje:

  • Przestronny salon z aneksem kuchennym 
  • Sypialnia 1
  • Sypialnia 2
  • Pom. gospodarcze
  • Łazienka z WC 
  • Przedpokój


Mieszkanie sprzedawane w standardzie deweloperskim! 

Możliwość zakupu miejsca parkingowego w hali garażowej (winda zjeżdża na poziom -1) w cenie od 40 000 zł. 

Ogrzewanie oraz ciepła woda z systemu SEC zapewniają komfort przez cały rok.

Inwestycja zakończona, możliwość wydania kluczy od zaraz!

Serdecznie zapraszamy do zapoznania się z ofertą!


Szczegóły
Rodzaj oferty Mieszkanie na sprzedaż
Liczba pokoi 3
Liczba pięter 3
Powierzchnia 67 m2
Cena 665 181 zł (9 900 zł/m2)
Rodzaj budynku Niski blok
Rok budowy 2025
Materiał Silikat
Rodzaj ogrzewania co miejskie
Dodatkowo winda