Dom na sprzedaż
| Lokalizacja |
Charzyno Willowa |
|
|---|---|---|
| Numer oferty | BON47306 | |
| Rok budowy | 2025 | |
| Materiał | Mieszany | |
| Liczba pokoi | 5 | |
| Powierzchnia | 97 m2 | |
| Działka | 146 m2 | |
| Cena | 749 000 zł |
Nowa inwestycja, osiedle budynków mieszkalnych jednorodzinnych w zabudowie szeregowej.
Projekt osiedla zakłada 33 domy szeregowe przy ul. Willowej w miejscowości Charzyno, w województwie zachodniopomorskim.
Charzyno to urokliwa miejscowość położona blisko nadmorskiego kurortu Kołobrzeg, co czyni tę lokalizację niezwykle atrakcyjną dla osób poszukujących spokojnego miejsca do zamieszkania blisko morza.
Lokalizacja:
- 7 km od Kołobrzegu, 10 minut autem do centrum miasta i wszelkich atrakcji tego kurortu
- 4 km do wjazdu na trasę szybkiego ruchu S6, idealny wyjazd w stronę Koszalina, Szczecina czy też Nowogardu
- w bliskiej odległości infrastruktura typu markety, szkoły, kościół, szkoła podstawowa
- sąsiedztwo natury co zapewnia ciszę i spokój
Technologie użyte do budowy:
Każdy dom zostanie wykończony w najwyższym standardzie przy zastosowaniu najnowocześniejszych technologii takich jak:
- Smart Home
- Fotowoltaika, 6 Kw plus magazyn 10 Kw, nie ujęta w cenie, ze względu na dofinansowanie dla osoby fizycznej.
Koszt 32 000 zł brutto, dotacja do 20 000 zł
- Pompa ciepła* i ogrzewanie podłogowe o mocy 6kW firmy Auratsu, zapewni Ci oszczędność na rachunkach za energię elektryczną.
- Okna plastikowe z pakietem trzyszybowym
- Fundamenty wykonane z solidnego żelbetonu.
- Ściany wewnętrzne domy wykonane z betonu komórkowego.
- Każdy dom jest ogrodzony panelami 3D w kolorze antracyt
Ponadto:
- Dla każdego mieszkańca osiedla dostępny plac rekreacyjny wraz z grillem.
- Podjazd wykonany z kostki brukowej.
- Do każdego domu przynależne 2 miejsca parkingowe, jedno przed budynkiem a drugie przy granicy z działką drogową
- Każdy dom posiada indywidualny ogródek
Parametry domu:
- powierzchnia mieszkalna- 97,40 m2
- powierzchnia działki - 146,60 m2
- ilość sypialni - 3
- ilość łazienek- 2
- salon z aneksem kuchennym
- gabinet
- taras
- ogródek
- ilość miejsc parkingowych- 2
- termin oddania - kwiecień 2026r
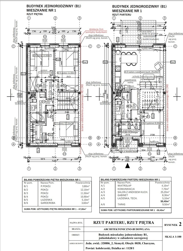
Parter:
- Salon z aneksem kuchennym - 25,2 m2
- Łazienka - 5,1 m2
- Hol wejściowy - 7,7 m2
- Gabinet - 8,3 m2
- Wiatrołap - 4,1 m2
- Taras - 9,5 m2
Całkowita powierzchnia parteru: 50,4 m2
Piętro:
- Pokój - 11,5 m2
- Pokój - 10,9 m2
- Pokój - 12,1 m2
- Przedpokój - 3,8 m2
- Łazienka - 5,1 m2
- Garderoba - 3,6 m2
Całkowita powierzchnia piętra: 47 m2
Sprawdź dostępne domy w przedsprzedaży.
Zapraszamy do kontaktu wszystkich, którzy chcą zapoznać się z naszą wyjątkową ofertą.
Zamieszkaj w sąsiedztwie Kołobrzegu i ciesz się dostępem do mnóstwa zielonych terenów rekreacyjnych i wypoczynkowych nad najpiękniejszym polskim morzem.
| Rodzaj oferty | Dom na sprzedaż | ||
|---|---|---|---|
| Liczba pokoi | 5 | ||
| Liczba pięter | 1 | ||
| Powierzchnia | 97 m2 | ||
| Działka | 146 | ||
| Cena | 749 000 zł (7 689 zł/m2) | ||
| Forma prawna | Własność | ||
| Forma prawna gruntu | Własność | ||
| Rok budowy | 2025 | ||
| Materiał | Mieszany | ||
| Stan budynku | Stan deweloperski |