Mieszkanie na sprzedaż
| Lokalizacja |
Szczecin Turzyn Pocztowa |
|
|---|---|---|
| Numer oferty | 76/13324/OM | |
| Rodzaj budynku | Kamienica | |
| Rok budowy | 1920 | |
| Materiał | Cegła | |
| Liczba pokoi | 2 | |
| Powierzchnia | 46 m2 | |
| Cena | 399 900 zł |
OFERTA NA WYŁĄCZNOŚĆ – KLUCZE W BIURZE
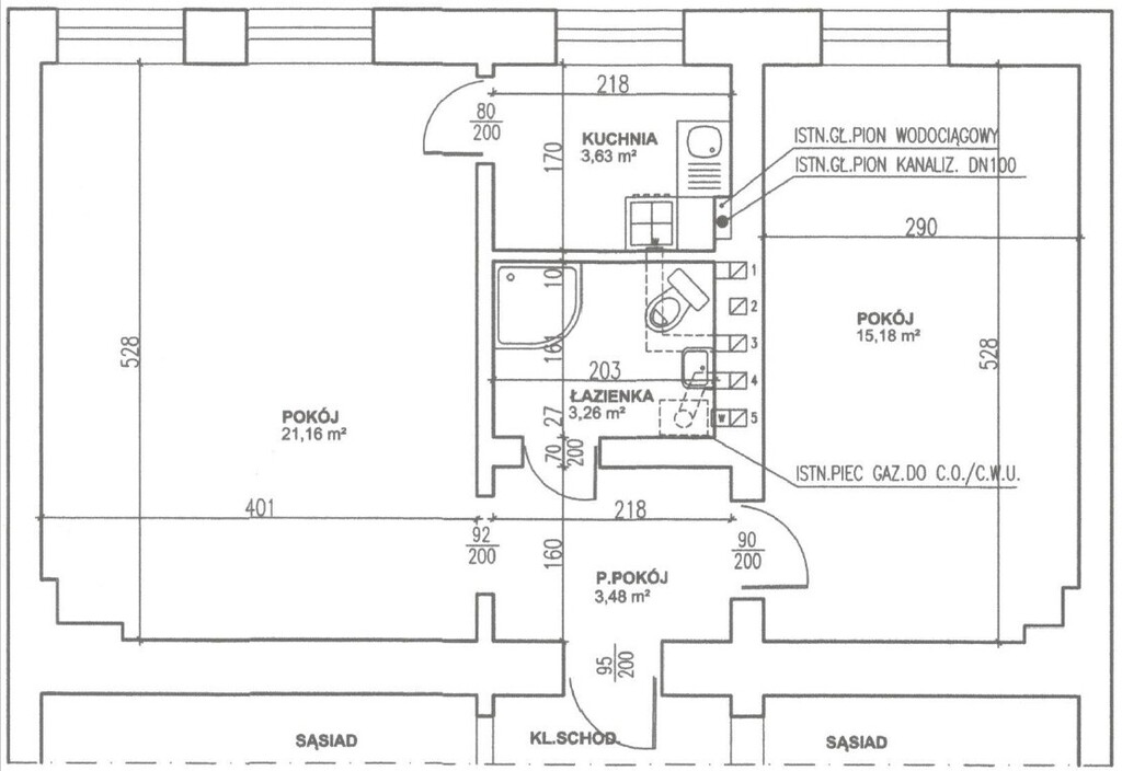
Przedstawiamy ofertę sprzedaży rozkładowego mieszkania o pow. 46,71 m2 w kamienicy w bardzo dobrej lokalizacji blisko Centrum. Idealne zarówno dla małej rodziny, singla lub pod inwestycję.
Mieszkanie:
* powierzchnia 46,71 m2
* 1 piętro
* przedpokój, łazienka, 2 pokoje, kuchnia
* wys. 3,40 m
* w przedpokoju, kuchni i łazience nowa instalacja elektryczna oraz ocieplone podłogi
* łazienka z kabiną prysznicową, wc, umywalką i pralką; kocioł gazowy dwuobiegowy jeszcze na gwarancji
* widna kuchnia
* CO i ciepła woda z kotła gazowego
* odrestaurowana stolarka drzwiowa
* w pokojach deska podłogowa do renowacji
* ściany i sufity proste, świeżo po malowaniu
* okna PCV w dobrym stanie
* przynależna piwnica
* solidne drzwi antywłamaniowe nowego typu
Budynek:
*kamienica w bardzo dobrym stanie wizualnym
*dobrze utrzymana klatka schodowa
Okolica:
Mieszkanie znajduje się w dzielnicy Turzyn bardzo blisko Centrum Szczecina, co sprawia, że jest to miejsce doskonale skomunikowane - w najbliższej okolicy znajdziemy liczne przystanki linii 5, 7, 8, 9, a nieco dalej (600 m) linii 1, 2 i 87. Do Placu Kościuszki odległość wynosi 700 m, a stamtąd mamy kolejne możliwości wybrania transportu komunikacji miejskiej. W okolicy jest absolutnie wszystko, co potrzebne do wygodnego życia w zależności od potrzeb, czyli przedszkole, szkoła podstawowa, liceum, sklepy, punkty usługowe i gastronomiczne, poczta, apteki, uczelnie wyższe, centrum fitness. Dla osób szukających mieszkania blisko miejskich wydarzeń – do Ogrodów Śródmieście odległość wynosi 700 m, a do Deptaku Bogusława 900 m.
Ważne:
* Czynsz administracyjny przy 1 osobie – 300 zł (przy 4 wynosił zaledwie 450)
* Prąd i gaz wg zużycia (w przypadku gazu kwota jest uzależniona od miesięcy zimowych i letnich związanych z ogrzewaniem średnio 150 zł/miesiąc)
* Przynależna piwnica
* Miejsca postojowe na ulicy w strefie A (czerwona) – dla właścicieli koszt miesięczny wg stawki SPP
| Rodzaj oferty | Mieszkanie na sprzedaż | ||
|---|---|---|---|
| Liczba pokoi | 2 | ||
| Liczba łazienek | 1 | ||
| Liczba pięter | 3 | ||
| Powierzchnia | 46 m2 | ||
| Cena | 399 900 zł (8 561 zł/m2) | ||
| Forma prawna | Własność | ||
| Rodzaj budynku | Kamienica | ||
| Rok budowy | 1920 | ||
| Materiał | Cegła | ||
| Rodzaj ogrzewania | gazowe | ||
| Komunikacja | tramwaj, autobus | ||
| Dostępne w okolicy | restauracja, centrum handlowe, szkoła, przedszkole, fitnes, bank, uczelnia, gimnazjum, przychodnia lekarska, zabudowa niska, apteka, Żłobek, sklep, szpital, plac zabaw, kościół, bar |