POWIERZCHNIA (M²)

CENA ZA M²

PIĘTRO

LICZBA POKOI

ROK BUDOWY

RYNEK

NUMER OFERTY

Poprzednia oferta
Powrót
Następna oferta

Zamieszkaj blisko morza koło Kołobrzegu.

Dom na sprzedaż

Lokalizacja Charzyno
Willowa
Numer oferty BON47290
Rok budowy 2025
Materiał Mieszany
Liczba pokoi 5
Powierzchnia 97 m2
Działka 146 m2
Cena 699 000 zł

Opis

Nowa inwestycja, osiedle budynków mieszkalnych jednorodzinnych w zabudowie szeregowej.
Projekt osiedla zakłada 33 domy szeregowe przy ul. Willowej w miejscowości Charzyno, w województwie zachodniopomorskim. 
Charzyno to urokliwa miejscowość położona blisko nadmorskiego kurortu Kołobrzeg, co czyni tę lokalizację niezwykle atrakcyjną dla osób poszukujących spokojnego miejsca do zamieszkania blisko morza.
Lokalizacja:
- 7 km od Kołobrzegu, 10 minut autem do centrum miasta i wszelkich atrakcji tego kurortu
- 4 km do wjazdu na trasę szybkiego ruchu S6, idealny wyjazd w stronę Koszalina, Szczecina czy też Nowogardu
- w bliskiej odległości infrastruktura typu markety, szkoły, kościół, szkoła podstawowa
- sąsiedztwo natury co zapewnia ciszę i spokój

Technologie użyte do budowy:
Każdy dom zostanie wykończony w najwyższym standardzie przy zastosowaniu najnowocześniejszych technologii takich jak:
- Smart Home 
- Fotowoltaika, 6 Kw plus magazyn 10 Kw, nie ujęta w cenie, ze względu na dofinansowanie dla osoby fizycznej.
Koszt 32 000 zł brutto, dotacja do 20 000 zł
- Pompa ciepła* i ogrzewanie podłogowe o mocy 6kW firmy Auratsu, zapewni Ci oszczędność na rachunkach za energię elektryczną.
- Okna plastikowe z pakietem trzyszybowym
- Fundamenty wykonane z solidnego żelbetonu.
- Ściany wewnętrzne domy wykonane z betonu komórkowego.
- Każdy dom jest ogrodzony panelami 3D w kolorze antracyt
Ponadto:
- Dla każdego mieszkańca osiedla dostępny plac rekreacyjny wraz z grillem.
- Podjazd wykonany z kostki brukowej.
- Do każdego domu przynależne 2 miejsca parkingowe, jedno przed budynkiem a drugie przy granicy z działką drogową
- Każdy dom posiada indywidualny ogródek 
Parametry domu:
- powierzchnia mieszkalna- 97,40 m2
- powierzchnia działki - 146,60 m2
- ilość sypialni - 3
- ilość łazienek- 2
- salon z aneksem kuchennym
- gabinet
- taras
- ogródek
- ilość miejsc parkingowych- 2
- termin oddania - kwiecień 2026r

Parter:
Salon z aneksem kuchennym - 25,2 m2
- Łazienka - 5,1 m2
- Hol wejściowy - 7,7 m2
- Gabinet - 8,3 m2
- Wiatrołap - 4,1 m2
- Taras - 9,5 m2

Całkowita powierzchnia parteru: 50,4 m2

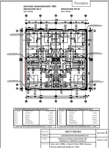
Piętro:
Pokój - 11,5 m2
- Pokój - 10,9 m2
- Pokój - 12,1 m2
- Przedpokój - 3,8 m2
- Łazienka - 5,1 m2
- Garderoba - 3,6 m2

Całkowita powierzchnia piętra: 47 m2



Sprawdź dostępne domy w przedsprzedaży.

Zapraszamy do kontaktu wszystkich, którzy chcą zapoznać się z naszą wyjątkową ofertą.
Zamieszkaj w sąsiedztwie Kołobrzegu i ciesz się dostępem do mnóstwa zielonych terenów rekreacyjnych i wypoczynkowych nad najpiękniejszym polskim morzem.













Opis dodatkowy dołączany w eksporcie:





Szczegóły
Rodzaj oferty Dom na sprzedaż
Liczba pokoi 5
Liczba łazienek 2
Liczba pięter 1
Powierzchnia 97 m2
Działka 146
Cena 699 000 zł (7 176 zł/m2)
Forma prawna Własność
Forma prawna gruntu Własność
Rok budowy 2025
Materiał Mieszany
Stan budynku Stan deweloperski