Mieszkanie na sprzedaż
| Lokalizacja |
Szczecin Śródmieście ul. Mariana Langiewicza |
|
|---|---|---|
| Numer oferty | BON47277 | |
| Rodzaj budynku | Niski blok | |
| Rok budowy | 1999 | |
| Materiał | Cegła | |
| Liczba pokoi | 2 | |
| Powierzchnia | 52 m2 | |
| Cena | 510 000 zł |
Planujesz skredytować to mieszkanie – zadzwoń.
Dwupokojowe, rozkładowe mieszkanie z balkonem w śródmieściu Szczecina przy ul. Langiewicza.
Nieruchomość idealna na zakup na własne potrzeby ale także na inwestycję pod wynajem ze względu na bliskość uczelni wyższych i rozkład mieszkania.
W pobliżu liczne sklepy, punkty gastronomiczne, komunikacja miejska.
Ogólnodostępny parking pod budynkiem.
Mieszkanie znajduje się na drugim piętrze niskiego budynku z cegły. Rok budowy 1999.
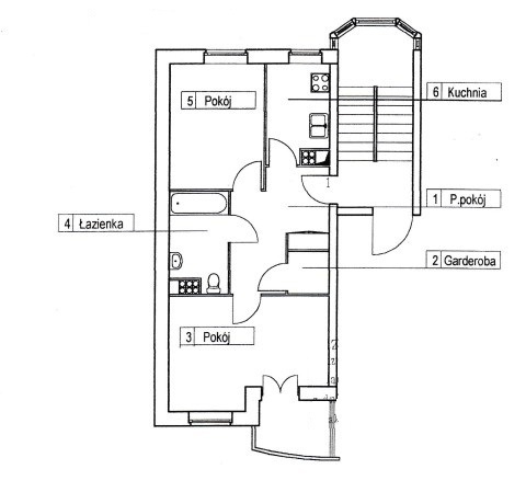
Mieszkanie o powierzchni 52,90 m2, składa się z:
- przestronnego, jasnego salonu o pow. 17,30m2
- ustawnego pokoju o pow. 12,52m2
- przedpokoju z szafą w zabudowie o pow. 6,75m2
- garderoby o pow. 1,85m2
- łazienki z wanną i wc o pow. 8,54m2
Do mieszkania przynależy piwnica.
Czynsz około 325 zł., zawiera opłaty administracyjne, eksploatacyjne oraz fundusz remontowy. Ogrzewanie oraz podgrzanie wody z pieca gazowego.
Piec gazowy jest nowy.
Zapraszam na prezentację.
Świadectwo charakterystyki energetycznej - zapotrzebowanie na energię:
EU - użytkową (kWh/m2*rok): 101.20; EK - końcową (kWh/m2*rok): 140.10; EP - nieodnawialną energię pierwotną (kWh/m2*rok): 158.80; EC02 - Wielkość emisji CO2 (t C02/m2*rok): 0.03; UOZE - Udział odnawialnych źródeł energii w zapotrzebowaniu na energię końcową [%]: 0.00;
| Rodzaj oferty | Mieszkanie na sprzedaż | ||
|---|---|---|---|
| Liczba pokoi | 2 | ||
| Liczba pięter | 4 | ||
| Powierzchnia | 52 m2 | ||
| Cena | 510 000 zł (9 640 zł/m2) | ||
| Forma prawna | Własność | ||
| Rodzaj budynku | Niski blok | ||
| Rok budowy | 1999 | ||
| Materiał | Cegła | ||
| Stan budynku | Bardzo dobry | ||
| Dodatkowo | piwnica     |