Dom na sprzedaż
| Lokalizacja | Dołuje | |
|---|---|---|
| Numer oferty | ROY03987 | |
| Rok budowy | 2025 | |
| Materiał | Gazobeton | |
| Liczba pokoi | 5 | |
| Powierzchnia | 98 m2 | |
| Działka | 550 m2 | |
| Cena | 799 000 zł |
Ofertą sprzedaży jest dom w zabudowie bliźniaczej, znajdujące się w miejscowości Dołuje. Jeśli marzysz więc o swoim własnym, komfortowym domu z piękną okolicą, to ogłoszenie z pewnością jest dla Ciebie.
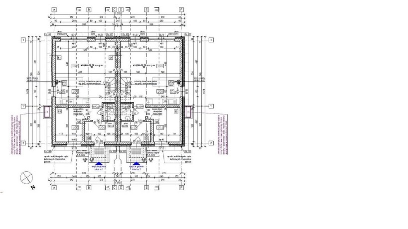
Dom dwukondygnacyjny o powierzchni 98 m2.
Działka o powierzchni 550 m2.
Dom w myśl nowoczesnej technologii, wyposażony zostanie w pompę ciepła oraz rekuperację, zapewniający oszczędność energii. Dodatkowo powierzchnia 98 m2, pozwoli na idealne stworzenie warunków dla Twojej rodziny.
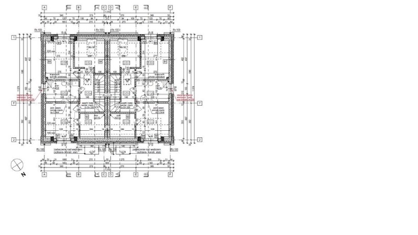
Na piętrze znajdować się będą 3 wyjątkowe pokoje, jeden z nich posiadać będzie garderobę. Dodatkowo na piętrze widnieć będzie duża przestronna łazienka. Na parterze natomiast znajduje się sypialnia, bądź gabinet, duży salon z aneksem kuchennym, a także łazienka.
Działka o powierzchni 550 m2, która idealnie nada się pod stworzenie własnego ogrodu czy relaksowania się na świeżym powietrzu. Do domu dodatkowo przynależą 2 miejsca postojowe.
Dołuje to spokojna okolica otoczona zielenią łącząca bliskość natury z dogodnym dojazdem do centrum miasta. Ponadto w pobliżu znajduje się żłobek, przedszkole, szkoły podstawowe, ośrodek zdrowia, sklepy oraz inne prywatne zakłady usługowe.
Nie ma rzeczy nie do zrobienia, dlatego dla nowego właściciela, możliwość wykończenia mieszkania "pod klucz" Projektanci zaaranżują Twoje wnętrze, a całość zostanie wykończona przez zespół remontowy. W tym przypadku czas odbioru domu potrwa dłużej. Osobę zainteresowaną tym rozwiązaniem, zapraszam do kontaktu w celu uzgodnienia wszystkich szczegółów.
Planowany termin odbioru - pierwszy kwartał 2026 roku.
Nieruchomość w standardzie deweloperskim - jedynie do wykończenia. W środku wszystkie instalacje - elektryczna, wodno-kanalizacyjna, C.O wraz z pompą ciepła.
Kupujący zwolniony z 2% podatku.
Mamy nadzieję, że to może być Twój nowy dom, w którym spełnisz wszystkie swoje marzenia o spokojnym i komfortowym życiu. Zapraszam serdecznie na prezentację.
| Rodzaj oferty | Dom na sprzedaż | ||
|---|---|---|---|
| Liczba pokoi | 5 | ||
| Liczba łazienek | 2 | ||
| Liczba pięter | 2 | ||
| Powierzchnia | 98 m2 | ||
| Działka | 550 | ||
| Cena | 799 000 zł (8 153 zł/m2) | ||
| Forma prawna | Własność | ||
| Forma prawna gruntu | Własność | ||
| Rok budowy | 2025 | ||
| Droga dojazdowa | Utwardzona | ||
| Materiał | Gazobeton | ||
| Stan budynku | Stan deweloperski | ||
| Rodzaj ogrzewania | pompa ciepła | ||
| Komunikacja | autobus | ||
| Odległość od centrum miasta | 11 km | ||
| Dostępne w okolicy | kościół, plac zabaw, Żłobek, przedszkole, szkoła, sklep, apteka | ||
| Dodatkowo | ogród     |