POWIERZCHNIA (M²)

CENA ZA M²

PIĘTRO

LICZBA POKOI

ROK BUDOWY

RYNEK

NUMER OFERTY

Poprzednia oferta
Powrót
Następna oferta

Lokal w centrum dający wachlarz możliwości

Wynajem lokalu usługowego

Lokalizacja Szczecin Centrum
Numer oferty KMF26808
Rodzaj budynku Apartamentowo-handlowy
Rok budowy 2000
Materiał Cegła
Powierzchnia 220 m2
Cena 14 300 zł

Opis

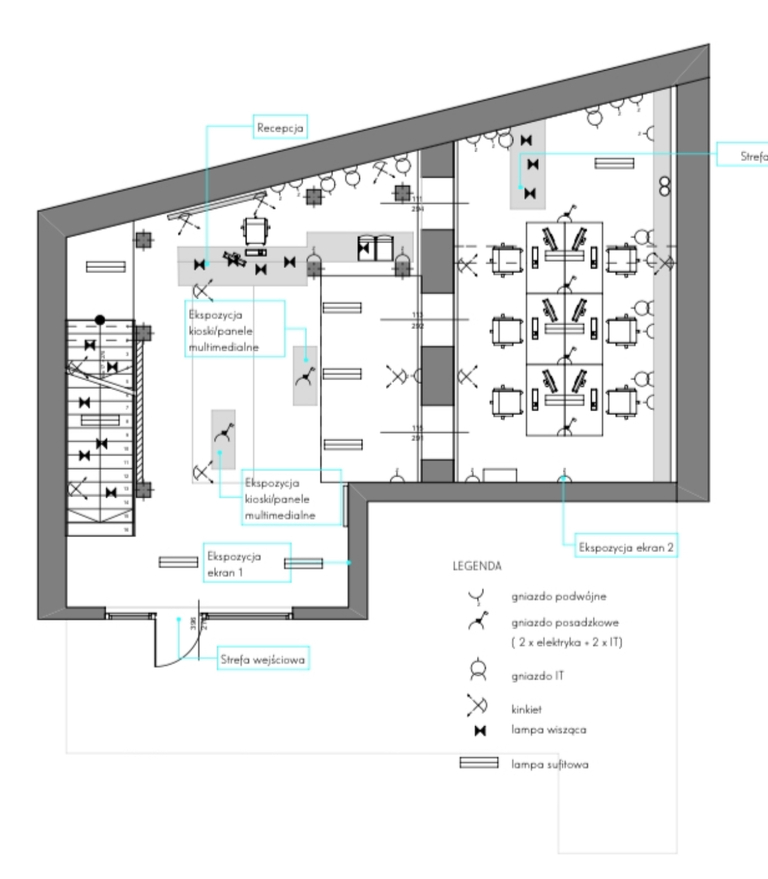
Przedmiotem wynajmu jest lokal o powierzchni 220m2 na dwóch poziomach parteru oraz piwnicy położony w samym centrum Szczecina w pobliżu Bramy Portowej.

Standard Lokalu to A+, na podłogach gres wysokiej klasy, duże witryny na poziomie 0, klatka schodowa prowadząca do poziomu -1, z którego można również wyjść na wewnętrzne patio. Do poziomu -1 można dostać się z niezależnego wejścia oraz windą. 

Parter składa się z otwartej przestrzeni z recepcja, wejściem do pokoju konferencyjnego gdzie znajduje się duży stół oraz multimedialna ściana oraz schody prowadzące do poziomu -1.
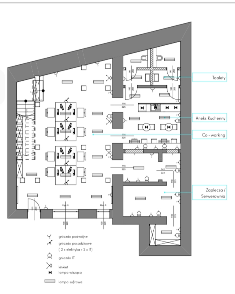
Poziom -1 składa się z przestrzeni otwartej ( wydzielony schowaj pod schodami) widnej z możliwością wyjścia na zadaszone patio, które w okresie letnim ma rośliny zielone oraz meble ogrodowe. Pomieszczenie socjalne z wyposażoną w pełni kuchnią, dwie toalety, magazyn oraz pomieszczenie archiwalne wraz z sejfem. 

Właściciel wyraża zgodę na przeprowadzenie potrzebnych prac, aby zaadaptować przestrzeń pod usługi min: : kliniki, gabinety spa, przedszkole czy biurowe z możliwością podzielenia przestrzeni  na boksy  etc. 

Koszt wynajmu to 14300 netto do tego trzeba doliczyć koszty eksploatacji ok 10zł/m2 plus kaucja.
Najem na okres min.5 lat

Zapraszam do umówienia się na prezentacje i zapoznania się osobiście z ofertą.


Szczegóły
Rodzaj oferty Wynajem lokalu usługowego
Liczba pięter 4
Powierzchnia 220 m2
Cena 14 300 zł (65 zł/m2)
Forma prawna Własność
Forma prawna gruntu Własność
Rodzaj budynku Apartamentowo-handlowy
Rok budowy 2000
Materiał Cegła
Stan budynku Idealny
Dodatkowo alarm    klimatyzacja    winda    recepcja    monitoring