POWIERZCHNIA (M²)

CENA ZA M²

PIĘTRO

LICZBA POKOI

ROK BUDOWY

RYNEK

NUMER OFERTY

Poprzednia oferta
Powrót
Następna oferta

Zamieszkaj w centrum miasta!

Mieszkanie na sprzedaż

Lokalizacja Szczecin Śródmieście-Centrum
Numer oferty HES28564
Rodzaj budynku Kamienica
Rok budowy 1930
Materiał Cegła
Liczba pokoi 1
Powierzchnia 32 m2
Cena 349 375 zł

Opis

Na sprzedaż mieszkanie dwupokojowe znajdujące się w ścisłym centrum miasta. Doskonała lokalizacja dzięki bliskości całej infrastruktury, sklepy, restauracje, komunikacja miejska w zasięgu kilku minut pieszo.

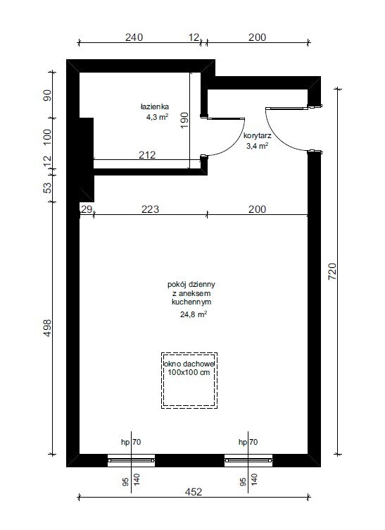
Na powierzchnię mieszkalną składają się:
- salon z aneksem kuchennym,
- łazienka,
- korytarz.

Mieszkanie powstało w wyniku adaptacji poddasza i sprzedawanej jest bez podatku PCC!

Standard wykończenia:
- ściany gładzone i malowane,
- na podłogach w pokoju z aneksem i sypialni panele,
- łazienka nowocześnie wykończona wraz z armaturą sanitarną i lustrem,
- nowy piec gazowy,
- wszystkie instalacje nowe.

Dla przyszłego nabywcy pozostaje jedynie wyposażenie wnętrza. Zdjęcie przedstawia wyłącznie wizualizację!

Gotowe do wydania od zaraz!

Zapraszam na prezentację!


Szczegóły
Rodzaj oferty Mieszkanie na sprzedaż
Liczba pokoi 1
Liczba pięter 4
Powierzchnia 32 m2
Cena 349 375 zł (10 750 zł/m2)
Rodzaj budynku Kamienica
Rok budowy 1930
Materiał Cegła
Rodzaj ogrzewania gazowe