POWIERZCHNIA (M²)

CENA ZA M²

PIĘTRO

LICZBA POKOI

ROK BUDOWY

RYNEK

NUMER OFERTY

Poprzednia oferta
Powrót
Następna oferta

Nowy dom w zabudowie bliźniaczej - Kijewo

Dom na sprzedaż

Lokalizacja Szczecin Kijewo
Numer oferty MTN13302
Rok budowy 2025
Materiał Silikat
Liczba pokoi 5
Powierzchnia 111 m2
Działka 284 m2
Cena 1 095 000 zł

Opis

Zapraszam do zapoznania się z ofertą nowej inwestycji deweloperskiej zlokalizowanej na Prawobrzeżu Szczecina w Kijewie.
Inwestycja składa się z dwóch budynków 2-lokalowych (łącznie cztery lokale mieszkalne) wybudowanych na działce o powierzchni 1139 m2.
Oferta dotyczy lokalu skrajnego od strony wjazdu.
Lokal mieszkalny składa się z dwóch poziomów o łącznej powierzchni użytkowej 111,8 m2.

Rozkład pomieszczeń parter:
- salon z jadalnią - 41,6 m2
- kuchnia - 5,2 m2
- łazienka z prysznicem - 2,2 m2
- pomieszczenie gospodarcze - 1,4 m2
- wiatrołap - 3,8 m2

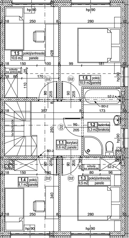
Rozkład pomieszczeń piętro:
- pokój - 10,9 m2
- pokój - 10,6 m2
- pokój - 9,5 m2
- pokój - 8,1 m2
- łazienka - 5,3 m2
- korytarz - 5,6 m2
- antresola - 7,6 m2

Budynek wykonany w nowoczesnej technologii z rozwiązaniami budynku pasywnego m.in. ocieplona płyta podłogowa. Sposób posadowienia płyta na palach betonowych. Materiał ścian - bloczki silikatowe, ocieplenie styropian - 15 cm. Dach pokryty dachówką cementową lub ceramiczną.
Ogrzewanie za pomocą pompy ciepła. Dla wygody i oszczędności zamontowane panele fotowoltaiczne.
Odprowadzenie ścieków kanalizacja sanitarna i deszczowa.
Powierzchnia ogrodu około 122 m2.
Do każdego lokalu przynależą dwa miejsca postojowe.

Doskonała lokalizacja inwestycji:
- osiedle Kijewo
- 250 m do Puszczy Bukowej
- około 300 m do Jeleniego Stawu
- około 450 m do komunikacji miejskiej.


Szczegóły
Rodzaj oferty Dom na sprzedaż
Liczba pokoi 5
Liczba łazienek 2
Powierzchnia 111 m2
Działka 284
Cena 1 095 000 zł (9 794 zł/m2)
Forma prawna Własność
Forma prawna gruntu Własność
Rok budowy 2025
Droga dojazdowa Asfaltowa
Materiał Silikat
Stan budynku Idealny
Dodatkowo alarm