Wynajem domu
| Lokalizacja | Szczecin Pilchowo | |
|---|---|---|
| Numer oferty | BON47138 | |
| Rok budowy | 1992 | |
| Materiał | Inny | |
| Liczba pokoi | 6 | |
| Powierzchnia | 215 m2 | |
| Działka | 485 m2 | |
| Cena | 8 000 zł |
Piękny wolnostojący dom w Szczecin - Pilchowo.
Dom o powierzchni 156,9 m2.
Odległość od jeziora Głębokiego ok. 1,5 km.
Nieruchomość znajduje się na wzgórzu, w spokojnej willowej części Pilchowa.
Dom został kilka lat temu wyremontowany i odświeżony.
Na powierzchnię domu składa się:
Parter 55,60 m2:
Duży salon z wyjściem na ogród
Otwarta kuchnia z wejściem do salonu
WC
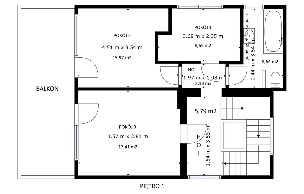
Piętro 62,90 m2:
Trzy pokoje
Łazienka z wc
Taras oraz balkon
Dwa pokoje
Wc
Poddasze użytkowe 38,40 m2
Dom w całości podpiwniczone. Do domu przynależy garaż.
Polecam szczególnie za względu na lokalizacje w cichej i spokojnej części Pilchowa.
W niedalekiej odległości od głównej ulicy w kierunku Głębokiego lub centrum Szczecina oraz Polic.
Dom jest nieumeblowany.
Serdecznie zapraszam na spacer wirtualny lub obejrzenie nieruchomości na żywo.
| Rodzaj oferty | Wynajem domu | ||
|---|---|---|---|
| Liczba pokoi | 6 | ||
| Liczba łazienek | 3 | ||
| Liczba pięter | 2 | ||
| Powierzchnia | 215 m2 | ||
| Działka | 485 | ||
| Cena | 8 000 zł (37 zł/m2) | ||
| Forma prawna | Własność | ||
| Rok budowy | 1992 | ||
| Droga dojazdowa | Asfaltowa | ||
| Materiał | Inny | ||
| Stan budynku | Bardzo dobry | ||
| Dodatkowo | kominek    piwnica    ogród     |