Dom na sprzedaż
| Lokalizacja | Strzeszów | |
|---|---|---|
| Numer oferty | BON47111 | |
| Rok budowy | 2021 | |
| Materiał | Gazobeton | |
| Liczba pokoi | 3 | |
| Powierzchnia | 121 m2 | |
| Działka | 719 m2 | |
| Cena | 239 000 zł |
Piękny, murowany dom całoroczny z widokiem na jezioro Strzeszowskie- bardzo przejrzyste, o II/III klasie czystości wody, idealne dla wędkarzy. Istnieje możliwość uprawiania sportów wodnych (kajaki, skutery wodne), niedaleko domku znajduje się kąpielisko.
Ciche, spokojne miejsce idealne na weekendowy wypoczynek, a może stworzenie wypożyczalni kajaków??? Miejsce, które czeka na nowe pomysły...
Dom jest w stanie surowym zamkniętym. Wstawione okna, wykonane zadaszenie, elewacja.
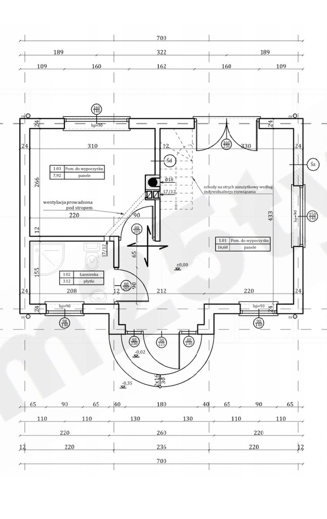
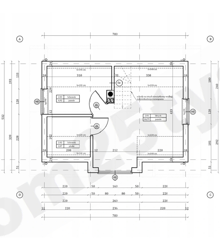
Na powierzchnię użytkową (około 90m2) składają się:
PARTER:
kuchnia połączona z salonem
łazienka
sypialnia (panele)-w części dobudowanej, miejsce na kominek
pomieszczenie gospodarcze
PIĘTRO:
2 sypialnie
garderoba/ewentualnie mała sypialnia
pomieszczenie gospodarcze
UWAGA:rzut jest orientacyjny, nie ma na nim części przybudówki.
MEDIA: prąd przy działce, własne ujęcie wody do wykonania (studnia), szambo (do wykonania), woda ciepła z przepływowego podgrzewacza, nowoczesne ogrzewanie elektryczne (np. maty grzewcze)
Działka o powierzchni 719 m2 (pełna własność) oraz udział w drodze dojazdowej.Dom jest budowany na zgłoszenie, niej jest ujęty w KW.
Działka nie jest ogrodzona, w sąsiedztwie nowo powstałe domki oraz bezpośrednio jeden w trakcie budowy.
Cena zawiera udział w drodze dojazdowej.
Odległość od Szczecina: 68 km, 50 minut.
Zapraszam na prezentację.
| Rodzaj oferty | Dom na sprzedaż | ||
|---|---|---|---|
| Liczba pokoi | 3 | ||
| Liczba pięter | 1 | ||
| Powierzchnia | 121 m2 | ||
| Działka | 719 | ||
| Cena | 239 000 zł (1 975 zł/m2) | ||
| Forma prawna | Własność | ||
| Forma prawna gruntu | Własność | ||
| Rok budowy | 2021 | ||
| Droga dojazdowa | Utwardzona | ||
| Materiał | Gazobeton | ||
| Stan budynku | Idealny | ||
| Dodatkowo | kominek    ogród     |