POWIERZCHNIA (M²)

CENA ZA M²

PIĘTRO

LICZBA POKOI

ROK BUDOWY

RYNEK

NUMER OFERTY

Poprzednia oferta
Powrót
Następna oferta

Lokal na sprzedaż 255m2 -Szczecin Gumieńce

Lokal usługowy na sprzedaż

Lokalizacja Szczecin Gumieńce
Numer oferty SWN32338
Rodzaj budynku Mieszkalno-biurowy
Rok budowy 2020
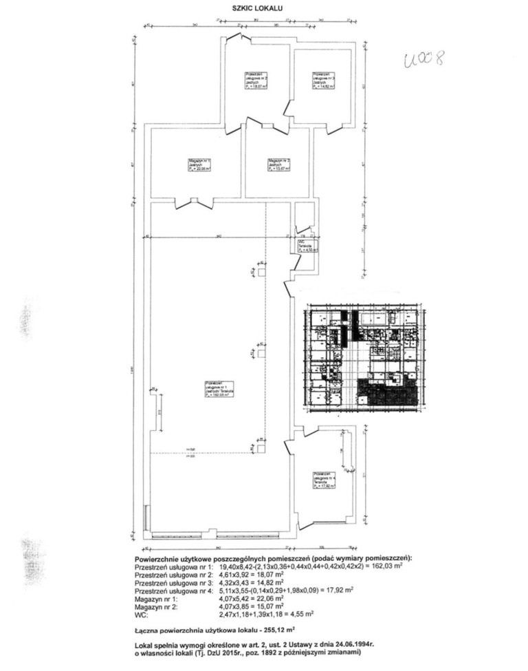
Powierzchnia 255 m2
Cena 1 763 000 zł

Opis

Na sprzedaż oferujemy przestronny i funkcjonalny lokal użytkowy o imponującej powierzchni 255 m², który doskonale sprawdzi się pod różnego rodzaju działalności gospodarcze.
Obecnie w lokalu znajduje się magazyn z biurem, a czas wydania wynosi około dwóch miesięcy. To idealna propozycja inwestycyjna, dostępna do zakupu od zaraz.  


Lokal położony jest na parterze.
Wnętrze to przestronny open space, który można dowolnie zaaranżować, a także pomieszczenia dodatkowe, takie jak kuchnia, biuro oraz toaleta. Lokal znajduje się w prężnie rozwijającej się dzielnicy, w otoczeniu dużego osiedla oraz licznych, dobrze prosperujących lokali z różnych branż. 


Podana cena jest ceną netto do której należy doliczyć podatek VAT w wysokości 23%.  Czynsz za lokal wynosi jedynie 2,99 zł netto za m², do którego doliczyć należy koszty mediów.
Dodatkowo lokal jest wyposażony w światłowód oraz objęty monitoringiem, co zwiększa komfort użytkowania. 


Istnieje możliwość wynajęcia miejsca parkingowego w garażowcu w cenie 400 zł miesięcznie lub zakupu miejsca w garażu za 65 000 zł. Dostępne są także miejsca postojowe na zewnątrz w cenie 30 000 zł.  


Zapraszamy na prezentację, którą można zorganizować praktycznie każdego dnia. To świetna oferta i doskonała inwestycja – polecamy!


Szczegóły
Rodzaj oferty Lokal usługowy na sprzedaż
Liczba pięter 7
Powierzchnia 255 m2
Cena 1 763 000 zł (6 910 zł/m2)
Forma prawna Własność
Rodzaj budynku Mieszkalno-biurowy
Rok budowy 2020
Stan budynku Idealny
Dodatkowo monitoring