Mieszkanie na sprzedaż
| Lokalizacja |
Szczecin Łasztownia ul. Celna |
|
|---|---|---|
| Numer oferty | BON47021 | |
| Rodzaj budynku | Apartamentowo-handlowy | |
| Rok budowy | 2024 | |
| Materiał | Cegła | |
| Liczba pokoi | 2 | |
| Powierzchnia | 50 m2 | |
| Cena | 995 000 zł |
Planujesz skredytować to marzenie – zadzwoń.
Nad Odrą to prestiżowy kompleks budynków, powstający w jednym z najciekawszych i coraz modniejszych miejsc Szczecina – na Łasztowni, nad brzegiem rzeki, w miejscu tętniącym życiem- sercu miasta. Łasztownia to nowy punkt na kulturalno- turystycznej mapie Szczecina, miejsce modne i tętniące życiem. Przyszła wizytówka miasta.
Lokalizacja idealna na inwestycje jak i do komfortowego mieszkania.
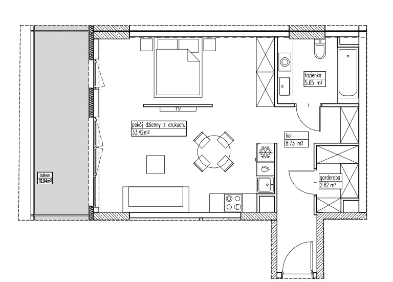
Apartament o powierzchni 48,65, składa się z salonu z aneksem kuchennym, wydzielonej sypialni, łazienki, garderoby i holu.
Mieszkanie posiada duży balkon od strony rzeki z widokiem na wodę i miasto.
Standard wykończenia, deweloperski
Do mieszkania można dokupić miejsce postojowe w cenie 60 tys. oraz komórkę lokatorską.
Posiadamy jeszcze do sprzedaży podobne apartamenty na piętrz III i IV, także od strony Odry z widokiem rzekę i miasto.
Zadzwoń i zapoznaj się ze szczegółami oferty.
| Rodzaj oferty | Mieszkanie na sprzedaż | ||
|---|---|---|---|
| Liczba pokoi | 2 | ||
| Liczba łazienek | 1 | ||
| Liczba pięter | 5 | ||
| Powierzchnia | 50 m2 | ||
| Cena | 995 000 zł (19 656 zł/m2) | ||
| Forma prawna | Własność | ||
| Forma prawna gruntu | Własność | ||
| Rodzaj budynku | Apartamentowo-handlowy | ||
| Rok budowy | 2024 | ||
| Materiał | Cegła | ||
| Stan budynku | Idealny | ||
| Dodatkowo | winda     |