Mieszkanie na sprzedaż
| Lokalizacja | Szczecin Niebuszewo | |
|---|---|---|
| Numer oferty | SWN32326 | |
| Rodzaj budynku | Niski blok | |
| Rok budowy | 1930 | |
| Materiał | Cegła | |
| Liczba pokoi | 3 | |
| Powierzchnia | 54 m2 | |
| Cena | 438 000 zł |
Polecam do sprzedaży mieszkanie 3 pokojowe położone na Niebuszewie przy ul. Rodziewiczówny w budynku z lat 30-tych po remoncie, elewacja docieplona i pomalowana na pastelowy kolor, klatka schodowa odświeżona, stan techniczny bardzo dobry.
Dwa mieszkania na piętrze, czysto i cicho.
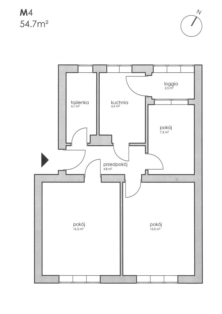
Mieszkanie położone na wysokim parterze, ma powierzchnię 54,75 m2 w skład której wchodzą:
- salon 16,3 m2,
- sypialnia 15,0 m2,
- pokój 7,3 m2,
- kuchnia 6,6 m2,
- łazienka 4,7 m2,
- przedpokój 4,8 m2,
- dodatkowo loggia 2,5 m2 .
Do mieszkania przynależy piwnica o powierzchni około 12,0 m2.
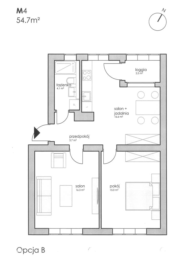
Mieszkanie do remontu, istnieje możliwość przebudowy i aranżacji wnętrza, przykładowe projekty w ofercie za zdjęciami.
Wymienione instalacje wodna i kanalizacyjna, instalacja grzewcza miejska. Ciepła woda z bojlera gazowego.
Okna wymienione na PCV. Niski czynsz administracyjny około 480zł.
Oferta godna polecenia ze względu na położenie, blisko środków komunikacji miejskiej, sklepów, szkół i przedszkoli, w bliskiej okolicy targowisko miejskie Manhattan.
Zapraszam na prezentację, klucze w biurze.
| Rodzaj oferty | Mieszkanie na sprzedaż | ||
|---|---|---|---|
| Liczba pokoi | 3 | ||
| Liczba łazienek | 1 | ||
| Liczba pięter | 3 | ||
| Powierzchnia | 54 m2 | ||
| Cena | 438 000 zł (8 000 zł/m2) | ||
| Forma prawna | Własność | ||
| Rodzaj budynku | Niski blok | ||
| Rok budowy | 1930 | ||
| Materiał | Cegła | ||
| Rodzaj ogrzewania | co miejskie | ||
| Komunikacja | tramwaj, autobus | ||
| Dostępne w okolicy | szkoła, centrum handlowe, bank, bazarek, przychodnia lekarska, plac zabaw, apteka, przedszkole |