POWIERZCHNIA (M²)

CENA ZA M²

PIĘTRO

LICZBA POKOI

ROK BUDOWY

RYNEK

NUMER OFERTY

Poprzednia oferta
Powrót
Następna oferta

Działka komercyjna w samym centrum Warszewa

Działka na sprzedaż

Lokalizacja Szczecin Warszewo
Numer oferty MOJ22098
Działka 854 m2
Cena 1 300 000 zł

Opis

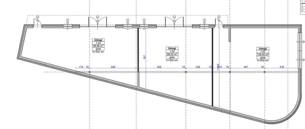
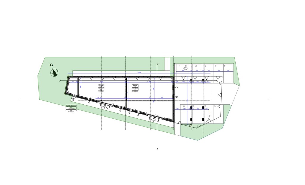
Do sprzedania działka komercyjna położona u zbiegu ulic Jemiołowej i Włoskiej objęta miejscowym planem zabudowania przestrzennego z gotową koncepcją budynku szeroko rozumianej komercji o powierzchni użytkowej ok 500 m2 zaplanowanej na dwóch poziomach wraz z miejscami postojowymi. Nieruchomość objęta jest Miejscowym planem zagospodarowania przestrzennego „Warszewo 5” w Szczecinie uchwalonym w dniu 26 listopada 2019r. Uchwałą Rady Miasta Szczecin Nr XII/435/19 i znajduje się w granicach terenu elementarnego oznaczonego na załączniku graficznym planu symbolem P.W.1039.U z przeznaczeniem terenu: zabudowa usługowa.
Dopuszcza się usługi w zakresie:
a) oświata,
b) wystawy i ekspozycje,
c) biura,
d) gastronomia, rozrywka,
e) obiekty upowszechniania kultury,
f) terenowe urządzenia sportu i rekreacji,
g) obiekty pomocy społecznej,
h) obiekty wychowania przedszkolnego, opieki nad dziećmi do lat 3,
i) poradnie medyczne,
j) obiekty lecznictwa zwierząt,
k) handlu, w obiekcie o powierzchni sprzedaży nie większej niż 200 m2,
l) usługi drobne,
m) jeden obiekt stacji paliw płynnych i gazu płynnego,
n) jeden obiekt myjni samochodowej.
Cena podana jest ceną netto do której należy dodać 23%VAT- u. Dla zainteresowanych klientów dokumentacja zagospodarowania + projekt budynku do wglądu u maklera prowadzącego. Zapraszam na prezentację.


Szczegóły
Rodzaj oferty Działka na sprzedaż
Działka 854
Cena 1 300 000 zł (1 522 zł/m2)
Forma prawna gruntu Własność
Droga dojazdowa Asfaltowa