Dom na sprzedaż
| Lokalizacja | Szczecin Wielgowo | |
|---|---|---|
| Numer oferty | SWN32282 | |
| Rok budowy | 2024 | |
| Materiał | Gazobeton | |
| Liczba pokoi | 5 | |
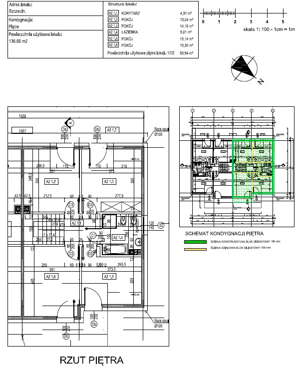
| Powierzchnia | 136 m2 | |
| Działka | 277 m2 | |
| Cena | 999 000 zł |
Mam przyjemność zaprezentować Państwu 5-pokojowy nowy dom jednorodzinny w zabudowie bliźniaczej o powierzchni 136,6 m2 na działce o powierzchni 277 m² oraz możliwością zakupu drugiej połowy domu. Aktualnie są wylewane stropy. Ostatnie 2 sztuki w tej cenie.
Ogólna charakterystyka:
Jest to dom parterowy z poddaszem użytkowym. Garaż w bryle budynku.
O nieruchomości
Dom znajduje się w Szczecinie na prawobrzeżu. Na parterze wydzielono przestronny salon z aneksem kuchennym, oraz wyjściem na taras, łazienkę oraz garaż. Na piętrze 4 pokoje, oraz łazienkę. Działka uzbrojona w sieć energetyczną, wodociągową, kanalizacyjnej,
Materiały:
Konstrukcja murowana gazobeton. Projektowane ocieplenie zewnętrzne zagęszczonym styropianem.
Ogrzewanie i chłodzenie:
Ogrzewanie podłogowe, z pompy ciepła powietrze woda.
Zapraszam na prezentację.
| Rodzaj oferty | Dom na sprzedaż | ||
|---|---|---|---|
| Liczba pokoi | 5 | ||
| Liczba łazienek | 2 | ||
| Liczba pięter | 2 | ||
| Powierzchnia | 136 m2 | ||
| Działka | 277 | ||
| Cena | 999 000 zł (7 869 zł/m2) | ||
| Forma prawna gruntu | Inna | ||
| Rok budowy | 2024 | ||
| Droga dojazdowa | Asfaltowa | ||
| Materiał | Gazobeton | ||
| Stan budynku | Surowy otwarty | ||
| Rodzaj ogrzewania | pompa ciepła |