POWIERZCHNIA (M²)

CENA ZA M²

PIĘTRO

LICZBA POKOI

ROK BUDOWY

RYNEK

NUMER OFERTY

Poprzednia oferta
Powrót
Następna oferta

Dom jednorodzinny w zabudowie bliźniaczej 136m2

Dom na sprzedaż

Lokalizacja Szczecin Wielgowo
Numer oferty SWN32279
Rok budowy 2024
Materiał Gazobeton
Liczba pokoi 5
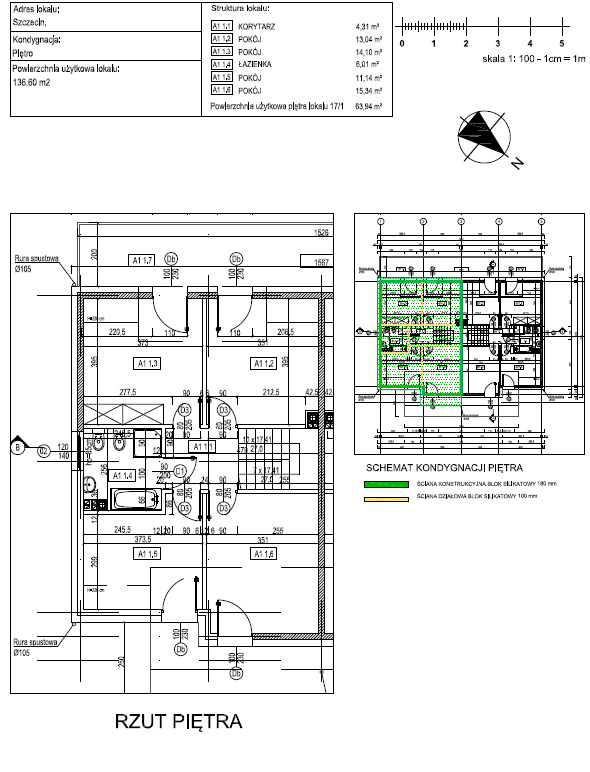
Powierzchnia 136 m2
Działka 321 m2
Cena 1 075 000 zł

Opis

Mam przyjemność zaprezentować Państwu 5-pokojowy nowy dom jednorodzinny w zabudowie bliźniaczej o powierzchni 136,6 m2 na działce o powierzchni 321 m² oraz możliwością zakupu drugiej połowy domu.  Aktualnie są wylewane stropy.

Ogólna charakterystyka:
Jest to dom parterowy z poddaszem użytkowym. Garaż w bryle budynku.  

O nieruchomości
Dom znajduje się w Szczecinie na prawobrzeżu. Na parterze wydzielono przestronny salon z aneksem kuchennym, oraz wyjściem na taras,  łazienkę oraz garaż. Na piętrze 4 pokoje, oraz łazienkę. Działka uzbrojona w sieć energetyczną, wodociągową, kanalizacyjnej, 

Materiały:
Konstrukcja murowana gazobeton. Projektowane ocieplenie zewnętrzne zagęszczonym styropianem.

Ogrzewanie i chłodzenie:
Ogrzewanie podłogowe, z pompy ciepła powietrze woda.

Zapraszam na prezentację.


Szczegóły
Rodzaj oferty Dom na sprzedaż
Liczba pokoi 5
Liczba łazienek 2
Liczba pięter 2
Powierzchnia 136 m2
Działka 321
Cena 1 075 000 zł (7 869 zł/m2)
Forma prawna gruntu Inna
Rok budowy 2024
Droga dojazdowa Asfaltowa
Materiał Gazobeton
Stan budynku Surowy otwarty
Rodzaj ogrzewania pompa ciepła